СПРАВОЧНОЕ ПОСОБИЕ К СНиП
ПРОЕКТИРОВАНИЕ ПРОФЕССИОНАЛЬНО-ТЕХНИЧЕСКИХ,
СРЕДНИХ СПЕЦИАЛЬНЫХ УЧЕБНЫХ ЗАВЕДЕНИЙ
И УЧЕБНЫХ КОМБИНАТОВ
Рекомендовано к
изданию Научно-техническим советом Института общественных зданий Минстроя
России (бывший ЦНИИЭП учебных зданий
Госкомархитектуры).
Редактор Э.И.
Федотова.
Разработано к СНиП
2.08.02-89. Общественные здания и сооружения. Рассмотрены функциональные
особенности, основные принципы проектирования профессионально-технических
училищ, техникумов, учебных комбинатов и комплексов учебных заведений, их
участки, размещение учебных заведений в структуре города.
Для специалистов,
занимающихся вопросами проектирования, строительства и эксплуатации
профессионально-технических, средних специальных заведений.
Предисловие
Справочное пособие
состоит из трех разделов. В первом разделе рассматриваются профтехучилища и
техникумы - учебные заведения, в которых во многом совпадают
учебно-материальная база, архитектурно-планировочная структура зданий,
технологическое оснащение помещений. Поэтому ряд положений раздела приводится
единым для названных учебных заведений. Помимо этого, содержатся положения,
отражающие специфические особенности профтехучилищ и техникумов.
Второй раздел
предназначен для проектирования учебных заведений профессионального обучения
рабочих на производстве - учебных комбинатов.
В третьем разделе
даны требования к инженерному обеспечению зданий профтехучилищ, техникумов и
учебных комбинатов.
Разработано ЦНИИЭП
учебных зданий Госкомархитектуры (кандидаты архит. С.Ф. Наумов, А.М. Гарнец,
О.М. Рубанович, Л.И. Ившина, Е.Н. Зайченко; кандидаты техн. наук С.П. Соловьев,
В.Г. Дубовой, А.А. Ищенко, С.М. Ройтбурд; архитекторы А.П. Николаев, С.А.
Бурмистрова, О.П. Одинцова, Н.П. Малиночка, А.В. Анисимов, М.П. Мильто, С.В.
Агаева, Н.Я. Великовская; инженеры В.С. Вольман, В.А. Белов, Г.Л. Якубович).
Раздел 1. Профессионально-технические
и средние
специальные учебные заведения
1. ОБЩИЕ
УКАЗАНИЯ
1.1. Профтехучилища
рекомендуется проектировать исходя из расчетного количества учащихся не более
2000 чел., а техникумы - не более 2400 чел. <*>.
--------------------------------
<*> К
профтехучилищам отнесены все виды профессионально-технических учебных
заведений, подготавливающие квалифицированных рабочих: на базе неполной (8 -
9-летней) общеобразовательной средней школы со средним и без среднего образования
- СПТУ, ПТУ, а также на базе полной средней школы - технические училища и
технические лицеи (ТУ, ТЛ).
К техникумам
отнесены все средние специальные учебные заведения - ССУЗ, в том числе
педагогические, медицинские и другие специальные училища, дающие среднее
образование и специальность.
Расчетная
наполняемость учебной группы - 25 - 30 учащихся.
1.2. Принимаемое
при проектировании расчетное количество учащихся должно учитывать условия
строительства учебных заведений (в городе или в сельских населенных пунктах), а
также их отраслевую принадлежность.
Для городских
учебных заведений профилей машиностроения, металлообработки и черной
металлургии, ведущих подготовку рабочих для крупных промышленных предприятий,
расчетный контингент учащихся рекомендуется принимать: в профтехучилищах - не
менее 18 учебных групп (450 - 540 учащихся), в техникумах - не менее 24 учебных
групп (600 - 700 учащихся).
При
проектировании профтехучилищ, подготавливающих кадры для строительства,
транспорта, связи, сферы обслуживания населения, а также при проектировании
средних специальных учебных заведений гуманитарного профиля (культуры,
искусства, просвещения, здравоохранения и др.) целесообразно принимать типы
зданий на 18, 24, 32 учебных групп, т.е. соответственно на 450, 600, 800
учащихся (наполняемость групп - 25 чел.) или 540, 720 и 900 учащихся
(наполняемость групп - 30 чел.).
Профтехучилища,
предназначенные для строительства в районах рассредоточенного расселения, в
сельской местности (как правило, это училища сельскохозяйственного профиля)
могут быть приняты минимальной вместимости - от 200 до 300 - 360 учащихся (8 -
12 учебных групп). Это позволяет создать в каждом сельском административном
районе свое профтехучилище.
Оптимальное число
учебных групп в техникумах сельскохозяйственного профиля - 24 - 32 (600 - 960
учащихся).
В городских
условиях расчетное число учебных групп 8 - 12 (200 - 360 учащихся) может быть
принято лишь для организации отделений и филиалов профтехучилищ, в которых
могут функционировать соответствующие отделения по профессиям и срокам обучения
(ПТУ, СПТУ, ТУ, ТЛ).
При конкретном
определении вместимости профтехучилища и техникума, находящегося в отраслевом
подчинении, количество мест в каждом учебном заведении устанавливается по
дополнительной потребности в квалифицированных кадрах на основе балансового
расчета потребности, источников ее обеспечения и перспективы использования
трудовых ресурсов.
1.3. Для общего
ориентировочного расчета учебной сети в населенных пунктах рекомендуется
использовать показатели, указанные в СНиП 2.07.01-89. Расчет числа учебных мест
уточняется и дифференцируется в зависимости от экономической структуры города
(административного района), условий комплектования учебных заведений,
тяготеющего населения прилегающих районов, а также от реальной возможности
обеспечения учащихся общежитиями.
Рациональная
организация сети учебных заведений обеспечивается как предварительным расчетом
ее численности, так и равномерным размещением учебных заведений, их укрупнением
и кооперированием, созданием опорных (базовых) учебных заведений - методических
центров.
1.4. Строительство
крупных по вместимости и кооперированных учебных заведений позволяет создать
более полноценную, чем в мелких училищах и техникумах, учебно-материальную базу
при экономном расходовании материальных ресурсов в расчете на одно учебное
место. Это касается как единовременных затрат на строительство, так и
последующей эксплуатации учебных зданий и помещений. За счет увеличения
расчетной вместимости учебных заведений и их объединения улучшаются не только
технико-экономические и функциональные показатели, но и
архитектурно-градостроительные качества зданий, укрупняется масштаб застройки,
обеспечивается целостность архитектурного решения
разрозненных объектов образования молодежи и достигается эффективность
использования земельных, в том числе городских территорий с ограниченными
строительными участками.
1.5. Расчетное
количество учащихся профтехучилищ и техникумов следует принимать по числу
учащихся дневного отделения, а при совмещении в одном здании дневного,
вечернего (сменного), заочного и других отделений - по наибольшему числу
учащихся, занимающихся одновременно.
Для примерных
расчетов рекомендуется учебный фонд дневных учебных заведений при наличии в них
заочных отделений увеличивать на 10 - 20% (лаборатории для прохождения
практики, кабинеты курсового и дипломного проектирования, дополнительные
учебные кабинеты и аудитории).
Вечерние отделения,
курсы повышения квалификации, как правило, используют учебный фонд дневных
отделений. Однако, если занятия в дневном учебном
заведении ведутся сменно, то для вечерних и других отделений требуются
дополнительные помещения.
2.
ТРЕБОВАНИЯ К УЧАСТКАМ
2.1. Размещение
профтехучилищ и техникумов в структуре города может быть различным. При
отсутствии специальных ограничений санитарно-гигиенического характера учебные
заведения могут размещаться практически в любой части города - при промышленном
предприятии, в районах новой и сложившейся жилой застройки.
2.2. При выборе
конкретного участка для строительства учебных заведений рекомендуется учитывать
их профиль и вместимость. Так, например, в районах реконструкции городской
застройки предпочтительны относительно небольшие по вместимости профтехучилища
и техникумы - не более чем на 18 - 24 учебные группы, которые могут занимать
ограниченные территории. Целесообразно строительство в плотной застройке
учебных заведений сферы обслуживания, гуманитарного профиля. Указанные
профтехучилища и техникумы не требуют больших площадей мастерских. Для них
характерно небольшое "пятно застройки", что позволяет легко вписывать
их в реконструируемые уплотненные районы и участки неправильной формы.
2.3. При размещении
учебных заведений необходимо учитывать местонахождение базовых предприятий.
Если представляется возможным использовать цеха базовых промпредприятий для
производственного обучения (химическая, нефтеперерабатывающая, газовая,
металлургическая промышленность и др.), то доступность базовых предприятий
должна быть минимальной.
На новых селитебных
территориях городов могут размещаться различные по вместимости и профилю
учебные заведения. Но при этом крупные учебные заведения или комплексы,
занимающие большие участки, уместно формировать на периферии жилых районов и
приближать их к зеленым массивам. Это в первую очередь относится к
профтехучилищам с выделенными блоками, предназначенными для
культурно-спортивного обслуживания учащихся, а также населения прилегающего
жилого района.
2.4. Учебные
заведения сельскохозяйственного профиля рекомендуется строить преимущественно в
сельской местности, что позволит приблизить их к предприятиям по производству и
переработке сельскохозяйственной продукции, а также предоставить им необходимые
участки и опытные поля. Техникумы, а в ряде случаев и ПТУ сельскохозяйственного
профиля, можно размещать автономно в пригородных зонах. Весьма перспективны
совхозы-техникумы.
2.5. Размеры
земельных участков профтехучилищ и техникумов в соответствии со СНиП 2.07.01-89
приведены в табл. 1.
Таблица 1
─────────────────────┬─────────────────────────────────────────────────────
Учебные заведения │
Размеры земельных участков, га, при количестве
│ учащихся
├────────┬─────────┬─────────┬─────────┬──────┬───────
│ до 300 │300
- 400│400 - 600│600 -
│1000 -│1500 -
│ │ │ │ 1000│ 1500│
2000
─────────────────────┼────────┼─────────┼─────────┼─────────┼──────┼───────
Для
всех учебных │ 2
│ 2,4 │
3,1 │ 3,7
│ 4,6 │ 5,8
заведений │ │ │ │ │ │
Сельскохозяйственного│
2 - 3 │2,4 - 3,6│3,1 -
4,2│3,7 - 4,6│ - │
-
профиля
<*> │ │ │ │ │ │
Размещаемые │ 1 - 2 │1,2 - 2,4│1,5 - 3,1│1,9 -
3,7│ - │
-
в
районах │ │ │ │ │ │
реконструкции
<**> │ │ │ │ │ │
Гуманитарного │1,4 - 2 │1,7 -
2,4│2,2 - 3,1│2,6 - 3,7│
- │ -
профиля
<***> │ │ │ │ │ │
--------------------------------
<*>
Допускается увеличивать, но не более чем на 50%.
<**>
Допускается сокращать, но не более чем на 50%.
<***>
Допускается сокращать, но не более чем на 30%.
Примечание. В
указанные размеры участков не входят участки общежитий, полигонов, опытных
полей и учебных полигонов.
2.6. На земельных
участках учебных заведений следует предусматривать, как правило, следующие
зоны: учебную, производственную, спортивную, хозяйственную, а при наличии
общежитий для учащихся - жилую. В учебных заведениях сельскохозяйственного
профиля, транспортных и т.п. для размещения зданий и сооружений по испытанию,
ремонту и обслуживанию техники может предусматриваться выделенная зона учебного
хозяйства (учхоз).
2.7. Общежития
профтехучилищ и техникумов целесообразно размещать на едином участке с учебным
заведением с целью организации непрерывного учебно-воспитательного процесса.
При решении генплана участка желательно жилую зону приближать к учебной зоне и
смежно с этими зонами располагать спортивную.
Во всех случаях
рекомендуется учитывать возможность использования спортивных сооружений учебных
заведений населением городских (жилых) районов или сельских населенных пунктов.
Примеры
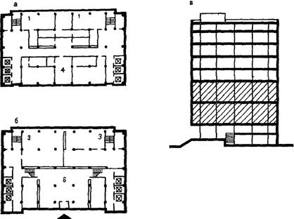
функционального зонирования участков учебных заведений приведены на рис. 1.

Рис. 1.
Функциональное зонирование участков профтехучилищ
Зоны участка: А - учебная; Б - производственная;
В - спортивная; Г - хозяйственная; 1 - учебный корпус;
2 -
учебно-производственный корпус; 3 - корпус
общественно-бытового
назначения; 4 - учебный тир;
5 - учебный
полигон; 6 - трансформаторная подстанция;
7 - гараж; 8 - открытые плоскостные спортивные
сооружения; 9 -
котельная
2.8. Размер жилой
зоны определяются в зависимости от количества учащихся, проживающих в
общежитии. Для предварительных расчетов принимают среднюю потребность числа
мест в общежитии - 30 - 50% контингента учащихся городских учебных заведений, а
для сельских - 90 - 100%.
Размер жилой зоны
для расчетного количества учащихся в соответствии с названным выше процентом
максимальной обеспеченности учащихся общежитиями приведен в табл. 2.
Таблица 2
──────────────────────┬───────────────────────────────────────────
Размещение учебных │
Размер жилой зоны, га, при количестве
заведений │ учащихся в учебном заведении
├───────┬────────┬────────┬────────┬────────
│до 400 │500
- │600 - │1000 - │1500 -
│ │ 600│ 1000│ 1500│ 2000
──────────────────────┼───────┼────────┼────────┼────────┼────────
В
городах │ 0,5
│ 0,8 │
1 │ 1,4
│ 1,6
В
сельской местности │ 0,8
│ 1,2 │
1,5 │ 2,4
│ 3,3
В городах возможно
строительство общежитий в пешеходной доступности от учебного заведения. В таких
случаях необходимо предусматривать в жилой зоне площадки для спортивных игр и
физической культуры.
2.9. Размеры
функциональных зон участка - учебной, производственной и спортивной - показаны
в табл. 3. Рекомендуемый состав спортивной зоны участка рассматривается в пп.
3.42 и 3.43.
Таблица 3
─────────────────────┬────────────────────────────────────────────
Зоны │Размеры функциональных зон
участка <*>, га,
│ при количестве учащихся
├──────┬───────┬──────┬───────┬──────┬───────
│до 300│300
- │400 - │600 - │1000 -│1500 -
│ │
400│ 600│ 1000│
1500│ 2000
─────────────────────┼──────┼───────┼──────┼───────┼──────┼───────
Учебная │ 0,6 │
0,7 │ 0,9 │
1,1 │ 1,2 │
1,6
Производственная │ 0,4 │
0,4 │ 0,5 │
0,6 │ 0,8 │
0,9
Спортивная │ 1 │
1,3 │ 1,7 │
2 │ 2,6 │
3,3
Жилая │ 0,4 │
0,5 │ 0,8 │
1 │ 1,4 │
1,6
Итого (с учетом
│ 2,4 │ 2,9
│ 3,9 │ 4,7
│ 6 │ 7,4
жилой
зоны) │ │ │ │
│ │
--------------------------------
<*>
Для городских ПТУ и техникумов при проживании в общежитиях 50% количества
учащихся учебного заведения.
Следует иметь в
виду, что на практике состав и размеры зон участка, приведенных в табл. 3,
могут варьироваться в зависимости от конкретных условий. Факторами, влияющими
на функциональное зонирование участка, являются профиль учебного заведения,
условия размещения в структуре города, климатические условия, конфигурация
участка, наличие и размер общежитий, этажность зданий и т.д.
2.10. Для
профтехучилищ и техникумов, ведущих подготовку кадров по монтажу строительных
конструкций, автомобильного, железнодорожного, водного транспорта, добывающей
промышленности, металлургии, нефтехимии, целесообразна организация
непосредственно на участках или рядом с ними учебных полигонов.
Строительство
учебных полигонов рекомендуется осуществлять по типовым проектным решениям или
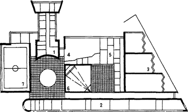
индивидуально разработанным проектам (рис. 2).

Рис. 2. Учебно-монтажный полигон (типовое проектное
решение N
230-09-16.86)
1 - учебно-бытовое
здание; 2 - 5 - площадки для отработки
приемов монтажа
железобетонных конструкций; 6 - площадка
для отработки
приемов кладки; 7 - площадка
для
растворосмесителей; 8 - площадка для отработки
приемов ручной
электросварки; 9 - площадка
для отработки
приемов монтажа стальных конструкций;
10 - площадка для
адаптации учащихся к работе на высоте
(вышка-тренажер);
11 - площадка для складирования
строительных
деталей и конструкций; 12 - площадка
для отдыха
учащихся; 13 - подкрановые пути и башенный кран
Как указывалось
ранее, площадь учебных полигонов в нормируемый размер участка не входит. Она
определяется технологическими требованиями и зависит от конкретных условий
размещения учебного заведения, конфигурации участка, особенностей производства,
для которого подготавливаются кадры.
Необходимость
разработки учебных полигонов и его требуемая площадь должны отражаться в
задании на проектирование.
Наиболее
предпочтительное размещение учебных полигонов - в производственной зоне участка
со стороны учебно-производственных мастерских для создания удобной
функциональной связи данных элементов единой учебно-производственной базы.
Полигон не желательно располагать со стороны учебных помещений, а расстояние до
окон других помещений следует принимать не менее 10 м. В случаях, обусловленных
конфигурацией участка, учебный полигон может располагаться не в
производственной зоне, а обособленно, на отведенной территории (рис. 3).
Рис. 3. Варианты
размещения учебных полигонов
1 - в
производственной зоне; 2 - на периферии участка;
3 - на свободной
территории участка; 4 - за пределами
участка; А -
учебная зона; Б - производственная зона;
В - спортивная зона; Г - жилая зона
2.11. Большие
учебные полигоны (площадью более 1 га), автодромы, а также другие полигоны
учебных заведений допускается размещать за пределами участка, но в радиусе
транспортно-пешеходной доступности не более 0,5 ч. При таком размещении на
учебных полигонах следует дополнительно предусматривать: кабинеты инструктажа,
помещения для обогрева учащихся, санитарно-бытовые помещения. Полигоны училищ и
техникумов агропромышленного направления могут быть объединены с учхозами.
2.12. Площадь
озеленения земельных участков профтехучилищ и техникумов должна составлять не
менее 40% площади участка. При размещении учебных заведений в сельских
населенных пунктах, вблизи лесных и садовых массивов, в условиях реконструкции,
а также в IА, IБ, IГ и IIА климатических подрайонах
площадь озеленения допускается сокращать не более чем на 30%.
Озеленение участка
не должно снижать уровень естественного освещения помещений. Во избежание
затемнения помещений деревья следует высаживать на расстоянии от окон учебных
помещений не менее 10 м, а кустарник - не менее 5 м.
2.13. Для
профилактики переутомления учащихся, закаливания их организма, повышения уровня
двигательной активности необходима организация на участке площадок спокойного и
активного отдыха.
Площадки спокойного
отдыха не следует располагать централизованно, выделяя их в особую зону.
Целесообразно их рассредоточенное размещение.
Площадки для
проведения активного отдыха могут размещаться централизованно и
рассредоточенно. В первом случае их размещают непосредственно у выходов из
учебного здания, принимая во внимание кратковременный характер отдыха. При этом
нежелательно площадки располагать со стороны окон учебных помещений.
В условиях
рассредоточенного размещения (в учебной, производственной, спортивных зонах)
должны быть обеспечены короткие связи площадок с учебными зданиями.
Тип ограждений
участков учебных заведений определяется заданием на проектирование.
3.
ОБЪЕМНО-ПЛАНИРОВОЧНЫЕ РЕШЕНИЯ
Общее
решение зданий и комплексов
3.1. В
профтехучилищах и техникумах, помимо теоретических занятий, проводятся:
учебно-производственное обучение, физическое воспитание, культурно-зрелищные
мероприятия, кружковые занятия, начальная военная подготовка, методическая
работа преподавателей, организуются отдых и питание учащихся. Для названных
целей в учебных заведениях предусматриваются помещения, объединяемые в
следующие функциональные группы:
учебные помещения;
учебно-производственные
помещения - учебно-производственные мастерские - УПМ (в профтехучилищах и
техникумах), помещения лабораторно-практических занятий (в техникумах);
учебно-спортивного
назначения;
помещения актового
зала;
помещения
клубно-кружковой работы;
библиотека;
общественного
назначения;
административно-служебные
помещения;
столовая;
медицинский пункт;
вспомогательные
помещения.
Схема взаимосвязи
основных групп помещений в здании учебных заведений показана на рис. 4.

Рис. 4. Схема
функциональной взаимосвязи
основных групп
помещений
1 - вестибюль; 2 -
учебные помещения; 3 - библиотека;
4 - актовый зал; 5
- столовая; 6 - спортивный зал;
7 -
учебно-производственные мастерские;
8 - учебный
полигон; 9 - открытые плоскостные
спортивные
сооружения
На основе
приведенной схемы возможны различные варианты компоновки групп помещений,
которые предопределяют множество архитектурных решений
зданий при одинаковом составе помещений.
3.2. Стремление к
выделению родственных (по функциям, режиму эксплуатации и однородных по
оснащению и оборудованию) групп помещений в самостоятельные более крупные
планировочные группы обусловило проектирование зданий, состоящих из трех
корпусов (блоков): учебного, учебно-производственного, общественно-бытового. В
типовом проектировании и массовом строительстве на протяжении ряда лет эти
корпуса получили широкое распространение для возведения новых и реконструкции
существующих ПТУ и техникумов.
Следует иметь в
виду, что при формировании учебных заведений из отдельных корпусов, что
наблюдается на свободных территориях и при расширении комплексов, удлиняются
пешеходные пути, инженерные коммуникации, увеличиваются площадь застройки и
размеры участка. Эти недостатки устраняются в централизованных
объемно-планировочных решениях, которые чаще всего применялись в индивидуальных проектах, а в последние годы и в типовых
проектах: комплексы профтехучилищ, включающие учебные и общественно-бытовые
помещения, а иногда еще и УПМ, объединенные учебно-общественно-бытовые здания
(рис. 5). Примеры применения централизованных композиций на разных этапах
массового строительства учебных заведений показаны на рис. 6.

Рис. 5.
Композиционные решения зданий
а - из отдельных
блоков, соединенных переходами;
б - из блоков, примыкающих друг к другу;
в -
централизованные решения

Рис. 6.
Развитие централизованных компактных схем
а, б - типовые проекты; в - индивидуальный проект
ПТУ
"Реставратор" в Ленинграде
На современном
этапе проектирования учебных зданий получают распространение также
компактно-блочные композиции, благодаря которым решаются вопросы изолирования
групп помещений и сокращения переходов.
3.3. Особенности
композиционных решений зданий профтехучилищ и техникумов, обусловленные
климатическими условиями, аналогичны всем учебно-воспитательным зданиям, равно
как и требования к строительству зданий в сейсмических районах, на
подрабатываемых территориях и в северных районах.
3.4. При
проектировании крупных профтехучилищ и техникумов (на 1500 и более учащихся)
возникают определенные особенности в формировании объемно-планировочной
структуры зданий. Новая организация учебного процесса, необходимая для больших
контингентов учащихся, предусматривает широкое применение лекционно-поточных
форм учебной деятельности, а также эффективную технологию организации
технических средств обучения - ТСО. Внедрение названных форм учебного процесса
влечет за собой появление новых функциональных элементов. К ним относится
информационно-технический комплекс, состоящий из технического центра (учебной
замкнутой телевизионной системы, вычислительного центра, учебно-методической
группы и т.д.), библиотеки - информационного центра с автоматизированными
зонами для индивидуальных занятий и блока лекционно-поточных аудиторий (рис.
7).

Рис. 7.
Схема взаимосвязи структурных подразделений
крупных профтехучилищ
1 - блоки учебных
помещений; 2 - столовая;
3 -
учебно-производственные мастерские;
4 - лекционные
аудитории; 5 - клубные помещения;
6 -
информационно-технический центр
3.5. В крупных и
средних (по числу учебных групп) профтехучилищах могут функционировать
отделения разных видов учебных заведений - СПТУ, ПТУ и ТУ или ТЛ. В этом случае
объемно-планировочная структура здания может предопределить раздельное
функционирование названных видов (отделений) учебных заведений в части учебных
помещений. Это достигается обычно планировочными средствами (разделение по
этажам, в обособленных отсеках-блоках и т.д.). Общие же помещения
культурно-массового, спортивного и обслуживающего назначения следует
располагать удобно по отношению ко всем отделениям училища.
3.6. Функционально-планировочная структура крупных техникумов
технических профилей разрабатывается, помимо учета ТСО, также и путем выделения
учебных помещений для автономно используемых отделениями техникума учебных
помещений общего назначения, единых для всего техникума. Это
предопределяет выделение в структуре техникума единого блока общетеоретической
подготовки и лабораторных блоков - как самостоятельных отделений для
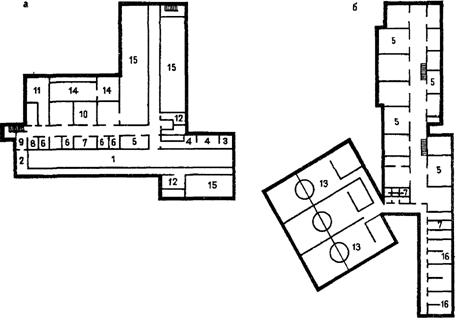
специальной подготовки (рис. 8).

Рис. 8. Особенности
функциональной структуры техникумов
1 - вестибюль; 2 -
гардероб; 3 - блок общеобразовательной
подготовки; 4 -
блоки отделений техникума;
5 -
учебно-производственные мастерские; 6 - актовый зал;
7 - спортивный зал;
8 - раздевальные спортзала;
9 - помещения
администрации
3.7. При
проектировании учебных заведений с выделенными клубно-спортивными помещениями,
которые могут использоваться населением, состав помещений спортивного
назначения включает: спортзалы с местами для зрителей, помещения для физкультурно-оздоровительных
занятий; помещения бассейна с одной-двумя ваннами для спортивного и
оздоровительного плавания (в зависимости от размера блока), залом
подготовительных занятий; помещения массажной и бани сухого жара;
вспомогательные помещения. В подобном блоке массовые (клубные) помещения имеют:
демонстрационную группу со зрительным залом, фойе-залом массовых мероприятий,
помещения для отдыха и развлечений, лекционно-информационную группу, кружковые
(досуговые) помещения.
Широкий состав
групп помещений спортивного и клубного назначения предопределяет не только
выделение их в самостоятельные блоки, но иногда обусловливает размещение в
отдельном здании, планировочно связанном с учебным зданием (рис. 9).

Рис. 9.
Профтехучилище с выделенными
клубно-спортивными
блоками для населения
Блоки
профтехучилища: 1 - учебный;
2 -
учебно-производственных мастерских; 3 - столовой;
4 - актового зала;
5 - спортивного зала
3.8. Высота
лекционных аудиторий на 90 и 120 мест, лаборатория с крупногабаритным
оборудованием, учебно-производственных мастерских, книгохранилищ с
двухъярусными стеллажами, актовых и спортивных залов определяется действующими
нормативными документами, технологическими требованиями и условиями,
устанавливающими параметры помещений.
3.9. Учебные
помещения следует размещать в надземных этажах. Помещения лабораторий
специального цикла и учебно-производственных мастерских с тяжелым оборудованием
следует размещать на первых или цокольных этажах бесподвальных зданий.
Над учебными
помещениями не следует размещать учебно-спортивные залы. В условиях
реконструкции допускается размещение спортзалов над учебными помещениями при
условии обеспечения мер защиты от шума.
Помимо указанного
выше требования, расположение спортивных залов в зданиях профтехучилищ и
техникумов принципиально не регламентируется, но наиболее оптимальное
размещение спортивных залов - на 1 - 2-м этажах (в особенности для учебных
заведений, располагаемых в сельских населенных пунктах).
Учебно-спортивные залы
желательно располагать со стороны участка, планировочно связывая его с
открытыми плоскостными спортсооружениями.
3.10. Расположение
актового зала определяется выбранным объемно-планировочным и конструктивным
решениями. Его расположение предпочтительно на нижних, но допустимо и на
верхних этажах зданий. Наиболее рациональные варианты блокировки актового зала:
со спортзалом, библиотекой (через фойе) или обеденным залом столовой. Могут
быть использованы и другие варианты блокировки актовых залов - с лекционной
аудиторией, кабинетом профориентации, комнатой технического творчества или
общественных организаций, кружковыми помещениями. Такая блокировка позволит
организовать общую зону воспитательной деятельности с включением ученических и
общественных организаций.
Оптимальной схемой
заполнения актовых залов независимо от их размещения является загрузка со
стороны, противоположной сцене. Пожарная эвакуация может осуществляться через
двери, расположенные на первом этаже.
Желательно, чтобы
фойе актового зала могло быть использовано как рекреация или балкон вестибюля
(при двухсветном вестибюле).
3.11. Помещения
столовой рекомендуется размещать на первом этаже, вблизи вестибюльной группы.
Для городских учебных заведений возможно размещение в двух уровнях: на первом этаже
- производственные и складские помещения, на втором - обеденный зал, кухня и
моечная посуды. В таком варианте необходимо предусматривать устройство
грузового лифта.
Различные приемы
размещения зальных помещений в структуре учебных заведений показаны на рис. 10.

Рис. 10. Примеры
размещения столовой, актового
и спортивного залов
в объемно-планировочной структуре здания
а - типовой проект
на 960 учащихся для Москвы;
б - экспериментальный проект ПТУ на 540 учащихся;
в - типовой проект
ПТУ на 540 учащихся;
1 - учебные
помещения
3.12. Помещения
культурно-массового назначения - актовый и спортивный залы, библиотека - должны
рассчитываться на их многофункциональное использование
как в учебное время, так и в вечерние неучебные часы. Поэтому часто
предусматривается автономное, независимое от других помещений, размещение
спортивного и актового залов, столовой, библиотеки. Целесообразно совместное
расположение их, а также доступ во внеучебное время в кружковые помещения
(комнаты технического, художественного, национального видов творчества, клубные
помещения по интересам, кабинеты самодеятельных коллективов). Данное положение
не означает выделение всех указанных помещений в отдельные блоки. Возможность
их использования независимо от учебных помещений может быть достигнута
планировочными средствами, как это показано на рис. 11.


Рис. 11.
Автономное использование помещений общественного
назначения
(столовой, актового и спортивного залов)
а - план первого
этажа; б - план третьего этажа;
1 - вестибюль; 2 -
учебные и административные помещения;
3 - столовая; 4 -
актовый зал; 5 - помещения при актовом
зале; 6 -
спортивный зал; вспомогательные помещения
при спортзале
3.13. Выбор
этажности учебных заведений определяется исходя из создания оптимальных
функционально-планировочных решений зданий, площадью отводимого земельного
участка, градостроительными условиями размещения (величиной города, районом
города, характером окружающей застройки).
В сельских
населенных пунктах, где строятся небольшие по вместимости учебные заведения,
высоту зданий рекомендуется принимать, как правило, до трех этажей. Для
городских условий строительства оптимальная высота профтехучилища и техникумов
- четыре этажа. Однако в ряде случаев градостроительная ситуация (затесненность
участка, особенности сложившейся застройки) может вызвать необходимость
строительства учебных заведений большей этажности.
3.14. При
проектировании зданий учебных заведений (в основном, техникумов) высотой 5 - 9
этажей функциональное зонирование зданий видоизменяется. С развитием объема
здания по вертикали традиционная схема взаимосвязи основных функциональных
элементов заменяется поэтажным (вертикальным) зонированием. Это вызывает
появление новых проблем при проектировании: сохранение простоты и
функционального единства при размещении основных групп помещений на различных
этажах; обеспечение удобных вертикальных связей между этажами; сокращение до
минимума вертикальных перемещений учащихся в течение учебного дня. Несмотря на
многообразие приемов решения данных проблем выявлены общие закономерности
формирования объемно-планировочной структуры многоэтажных зданий училищ и техникумов
в зависимости от их вместимости и профиля (рис. 12, 13).
А

Б

Рис. 12.
Функциональная структура многоэтажных зданий
А - проект ПТУ в
Москве (ЦНИИЭП учебных зданий):
а - план типового
этажа; б - план первого этажа;
Б - ремесленное училище в г. Амерсфотте (Голландия):
а - план первого
этажа; б - план подвала; в - разрез;
1 - учебные
помещения; 2 - актовый зал; 3 - столовая;
4 - библиотека; 5 -
спортивный зал; 6 - вестибюль;
7 -
технические помещения (заштрихованы
учебно-производственные
мастерские)

Рис. 13.
Функциональная структура многоэтажных зданий
крупных учебных
заведений и комплексов
(училище в г.
Франкфурте-на-Майне)
а - разрез; б -
план типового этажа; 1 - учебные
помещения;
2 - библиотека (заштрихованы
учебно-производственные
мастерские)
3.15. Требования к
проектированию многоэтажных компактных зданий различны. Учебные заведения на
400 - 800 учащихся, как правило, решаются компактно с размещением всех
функциональных элементов здания в едином объеме. Поэтажное распределение
учебно-производственных мастерских решается в зависимости от профилей училища
или техникума. На нижних этажах размешаются мастерские, оснащенные тяжелым
оборудованием. В училищах или техникумах гуманитарного профиля, обслуживания
населения, легкой промышленности, приборостроения и т.д. небольшие по площади
мастерские с легким оборудованием могут располагаться на промежуточных этажах.
Габариты зальных помещений (актовых и спортивных залов) учебных заведений
названных вместимостей позволяют "вписывать" их в структуру
компактного блока.
В учебных
заведениях на 1000 - 1500 учащихся зальные помещения часто выходят за габариты
компактного объема и поэтому их выносят в "стилобат" или отдельный
блок-корпус. В связи с этим в таких многоэтажных учебных заведениях получают
развитие блочные объемно-планировочные решения с многоэтажным главным корпусом
и встроенно-пристроенным объемом зальных помещений и мастерских.
Для учебных
заведений вместимостью 1500 и более учащихся, размещаемых в многоэтажных зданиях,
а также крупных учебных центров характерна дифференциация объемов. Их число,
этажность, функциональное зонирование определяются в каждом конкретном случае и
зависят от количества учебных отделений (количества учебных заведений, входящих
в центр), их вместимости и площади участка. Характерной
чертой формирования таких учебных заведений является автономное
функционирование учебных помещений отделений в многоэтажных корпусах с
кооперированным использованием помещений общественно-массового назначения, располагаемых
в отдельном одно- или двухэтажном объеме.
При оборудовании
многоэтажных зданий профтехучилищ и техникумов высотой пять этажей и выше
пассажирскими и грузовыми лифтами необходимо учитывать рекомендации Прил. 1.
3.16. При
проектировании общежитий возможны следующие варианты их размещения по отношению
к учебному заведению:
на участке,
удаленном от учебного заведения в радиусе транспортно-пешеходной доступности;
на одном участке с
учебным заведением;
в едином объеме с
учебным заведением.
Для современной
отечественной практики наиболее характерными являются первый и второй вариант,
значительно реже применяется третий. Однако в практике типового и
индивидуального проектирования уже имеются комплексы с объемно-пространственной
организацией профтехучилища и общежития (рис. 14). При такой планировке важно
обеспечить самостоятельные входы и выходы из обеих частей.

Рис. 14.
Расположение общежития в едином объеме
с учебным
заведением. ПТУ Сталепрокатного завода
в Ленинграде
(ЛенНИИпроект)
1 - общежитие; 2 -
учебные помещения; 3 - учебно-
производственные
мастерские; 4 - обеденный зал;
5 -
производственные помещения столовой;
6 - актовый зал; 7
- спортивный зал
Отдельно стоящие
здания общежития проектируют по нормам жилых зданий. В случае объединенного
размещения учебных зданий с общежитиями высоты помещений и площади назначают в
заданиях на проектирование с учетом норм и жилых, и общественных зданий.
Например, в училище Сталепрокатного завода (Ленинград) сгруппированы составные
функциональные блоки - учебный, учебно-производственный, жилой вокруг
композиционного "ядра" училища - общественно-бытового блока,
помещения которого в данном случае кооперированы из элементов профтехучилища и
общежития.
Необходимо
отметить, что в архитектурно-композиционном аспекте для подобных примеров
характерны функционально-обусловленное разнообразие средств, разновысотность
объемов и их этажей, пластичная конфигурация плана.
Положительный
эффект от объединения учебных зданий с общежитием заключается главным образом в
исключении дублирования помещений общего назначения (комнат клубно-кружковой
работы, медпункта, столовой, спортзала, а также некоторых
административно-служебных и вспомогательных помещений); при этом достигается
сокращение общей площади и строительного объема комплекса на 15 - 30%.
3.17. Состав и
площади помещений общежитий, требования к их объемно-планировочному и
конструктивному решению, к водоснабжению, канализации, отоплению, вентиляции и
электротехническим устройствам отражены в СНиП 2.08.01-85 "Жилые
здания".
3.18. Ряд помещений
учебных заведений целесообразно размещать в подвальных или цокольных этажах
зданий. Подземное строительство позволяет отказаться от устройства некоторых
конструктивных элементов, характерных для наземных объектов (крыша, оконные
блоки, отделка фасадов, внутренние водостоки и др.). Снижаются эксплуатационные
расходы на содержание объектов (например, на амортизационные отчисления, на
отопление). При использовании данных сооружений по двойному назначению
сокращаются затраты на их переоборудование в защитных целях, затраты на
строительство и эксплуатацию подобных сооружений по сравнению с отдельно
возводимыми учебными и специальными объектами. Вследствие сокращения площади
застройки получается также эффект за счет экономии ценной городской территории.
Перечень помещений,
размещение которых допускается в подвальных и цокольных этажах зданий, указан в
СНиП 2.08.02-89.
3.19. В конкретных градостроительных условиях и при определенном архитектурно-планировочном
решении зданий при обоснованиях возможно также размещение в подвальном этаже
помещений кратковременного пребывания людей (не более 1 ч); помещений
ученического самоуправления, общественных организаций, универсального клубного
помещения по интересам, технического центра, зоны читального зала с кабинами
для индивидуальных занятий, помещений для хранения, ремонта, изготовления и
обслуживания технических средств обучения.
В психологическом
аспекте следует архитектурными средствами уменьшить ощущение замкнутости
пространства и изоляции от внешнего мира. При проектировании подземных
сооружений целесообразно избегать размещения в подвальном этаже небольших
помещений с ограниченной деятельной активностью и контактами между людьми.
Целесообразно с
помощью специальных архитектурно-композиционных приемов обеспечивать при
возможности естественное освещение во всех помещениях, размещаемых ниже отметки
земли; проектировать осветительные установки в виде ложных светопроемов,
тщательно подбирать материалы и цветовую окраску интерьеров помещений.
Учет данных
требований поможет создать в названных помещениях искусственную среду, мало
отличающуюся от привычной обстановки в наземных объемах.
Следует учитывать
удорожание проектов с помещениями, расположенными ниже уровня земли. Так, вследствие необходимости организации искусственно создаваемой
среды (с помощью дорогостоящих инженерных систем и конструкций), усложнения
отдельных видов строительно-монтажных работ возрастают капитальные вложения и
общая сметная стоимость строительства зданий.
Примеры
использования помещений ниже уровня земли в зданиях учебных заведений показаны
на рис. 15.

Рис. 15.
Использование подвальных этажей зданий
а - типовой проект
ПТУ N 232-1-132.85; б - торговая школа
в г. Бадене
(Швейцария); 1 - огневая зона; 2 - огневые
позиции; 3 - склад
боеприпасов; комната для чистки оружия;
4 - комната для
чистки оружия; 5 - учебное помещение;
6 -
административные помещения; 7 - раздевальня;
8 - вестибюль; 9 -
ожидальная; 10 - складское помещение;
11 - кладовая
хранения лыж и коньков; 12 - уборные;
13 - спортивные
залы; 14 - технические помещения;
15 - техническое
подполье; 16 - помещение двойного
назначения
Рекомендации
использования помещений по второму назначению приведены в Прил.
2.
Учебные
кабинеты, лаборатории, аудитории
3.20. Теоретические
занятия в профтехучилищах и техникумах проводятся в следующих учебных
помещениях: учебных кабинетах, лабораториях, групповых и лекционных аудиториях.
Состав указанных
учебных помещений и их количество определяются в соответствии с расчетом исходя
из учебных планов и программ, сменности занятий, загрузки помещений. Учебные
помещения определяются из условия проведения теоретических занятий в одну
смену. При расчетах загрузку учебных помещений рекомендуется принимать, как
правило, не менее 75% учебного времени. Лаборатории, требующие специального
технологического оборудования, проектируют независимо от их загрузки.
Пример расчета,
состава и количества учебных помещений приведен в Прил.
2.
Площади учебных
помещений следует принимать в соответствии со СНиП 2.08.02-89 и рекомендациями
настоящего Справочного пособия.
3.21. Учебные
кабинеты и лаборатории (рис. 16) включают основные функциональные зоны: А - зону преподавателя; Б, В, Г - зону учащихся; Д - зону хранения;
Е - зону экспозиции.

Рис. 16.
Зонирование учебных кабинетов и лабораторий
1 - стол
преподавателя; 2 - стол демонстрационный;
3 - стол
ученический; 4 - тумба для проекционных аппаратов;
5 - стул
преподавателя; 6 - стул учащегося;
7 -
шкаф-перегородка (шкаф пристенный); 8 - доска меловая;
9 - экран; 10 -
штанга для подвески экспозиций;
11 - стол
лабораторный с микроскопом МИМ-7;
12 - то же, с
микроскопом МИМ-8; 13 - то же, с микроскопом
биологическим; 14 - препараторский стол; 15 - стол
лабораторный с твердометром ПМТ-3; 16 - то же,
с твердометром шариковым; 17 - то же, с твердометром
конусным; 18 - то же, с электропечью муфельной;
19 - то же, с
электропечью тигельной; 20 - шкаф вытяжной;
21 - наглядные
пособия; А - зона преподавателя;
Б - зона учащихся для теоретических занятий;
В - зона учащихся для лабораторно-практических
занятий
по микро- и макроанализу; Г - зона учащихся
для
лабораторно-практических занятий - термическая;
Д - зона хранения;
Е - зона экспозиции
Зона преподавателя,
включающая демонстрационную зону, имеет непосредственную функциональную связь с
зоной учащихся и зоной хранения (препараторской). Она охватывает место
расположения демонстрирующих поверхностей (меловой доски, экранов, таблиц и
т.д.), а также рабочее место преподавателя. Меловая доска, экраны, таблицы
укрепляют на торцевой стене кабинетов, и они должны быть видны с каждого
рабочего места учащихся. В зависимости от назначения помещения (например, в
лаборатории химии), у торцевой стены зоны преподавателя могут располагаться
витрина вытяжного шкафа, стационарные световые таблицы, телевизоры и т.д.
Место преподавателя
находится непосредственно у меловой доски и оборудуется рабочим столом
преподавателя или специализированным демонстрационным столом с пультом
дистанционного зашторивания и управления ТСО. Возможен вариант составного
демонстрационного стола, включающего стационарную часть и передвижную
(подставку под оборудование).
Зона учащихся
непосредственно примыкает к экспозиционной и
охватывает рабочие места учащихся и пространство для эвакуации. В зависимости
от назначения учебных кабинетов могут применяться столы ученические одноместные
и двухместные, столы аудиторные или лабораторные. Расстановка столов при
глубине помещения 6 м, как правило, трехрядная, но возможны варианты с
двухрядной или однорядной (сблокированной) расстановкой столов, соответственно,
одно-, двумя- и трехпродольными проходами; при глубине
помещений 9 и 12 м возможна четырехрядная расстановка столов.
Зона хранения может
размещаться как смежно с экспозиционной зоной, так и у задней торцевой или
боковой продольной стены учебных помещений. При наличии препараторской
зона хранения включает площадь препараторской. В нее входят также пристенные
шкафы или шкафы-перегородки для хранения наглядных пособий, приборов и ТСО.
Зона экспозиции
располагается вдоль продольной стены, смежно с зоной учащихся, и охватывает
несколько вариантов размещения наглядных пособий - плоские подвешивают на
штангах, объемные - расставляют на подставках. Возможен вариант совмещения зоны
экспозиции и зоны хранения (при устройстве пристенного шкафа с остекленными и
глухими поверхностями).
Лаборатории
профессионально-технического и специального циклов могут включать основные
функционально-планировочные зоны: А - зону преподавателя; Б -
зону учащихся для теоретических занятий; В, Г - зоны лабораторно-практических
занятий; Д - зону хранения; Е - зону экспозиции. От вышерассмотренных
кабинетов данные помещения отличаются зонами В и Г.
Расположение и оборудование всех зон, за исключением зон Б и Г, аналогично
кабинетам теоретических занятий.
Зона учащихся для
лабораторно-практических занятий может подразделяться на подзоны в зависимости
от видов технологического оборудования и специфики лабораторных работ.
Например, зона В лаборатории металловедения имеет подзоны термического
оборудования и микро-, макроанализа для точных
лабораторных работ.
В тех случаях, где
объемные наглядные пособия используют в качестве учебной экспозиции и
одновременно для лабораторно-практических занятий, зона В
совпадает с зоной Е (зоной экспозиции).
3.22.
Проектирование учебных кабинетов и лабораторий, их планировку и оборудование
рекомендуется осуществлять на основании параметров, показанных на рис. 17.

Рис. 17.
Схема планировки учебных помещений
а, в - учебные
помещения с демонстрационным столом;
б - то же, со
столом преподавателя; г - расстановка
лабораторных
столов; д - то же, чертежных столов;
1 - стол
ученический; 2 - стул учащегося;
3 - стол
преподавателя; 4 - стул преподавателя;
5 - стол
демонстрационный; 6 - стол лабораторный;
7 - стол чертежный;
8 - доска меловая; 9 - доска
приколочная; 10 -
шкаф секционный; 11 - лабораторное
оборудование; 12 -
место моделей и макетов
- между
рядами аудиторных столов.
- между
рядами чертежных столов или между рядами аудиторных столов при парном
расположении в ряду.
- между
рядами лабораторных столов; от последнего ряда аудиторных и чертежных столов до
задней стены или до встроенных шкафов, моделей и макетов; от 1-го ряда
аудиторных столов до демонстрационного стола; от моделей и макетов до задней
стены или встроенных шкафов.
- от
демонстрационного стола до меловой доски.
- от
последнего ряда лабораторных столов до стены.
- между
лабораторными столами.
- от
передних рядов аудиторных столов до меловой доски.
- то
же, при наличии демонстрационного стола.
- между
аудиторными столами при их парном размещении.
- между
чертежными столами при их парном размещении.
- от
лабораторных столов до боковой стены без оборудования.
- от
аудиторных и чертежных столов до боковой стены, боковых встроенных шкафов или
наглядных пособий.
-
проходы между рядами столов.
-
проходы между лабораторными столами (от раковины), стеной, шкафом или
оборудованием.
- угол
рассматривания.
При расположении
входа в учебное помещение со стороны последних рядов
и
увеличиваются на 60 см.
Расстояние от
передних рядов столов до меловой доски уточняется в зависимости от ее ширины.
Расстояние принимается из условия обеспечения угла рассматривания 30 - 35° для
учащихся, сидящих в первом ряду.
3.23. Высоту
подоконной части наружных стен учебных помещений рекомендуется принимать не
менее 80 см.
Планировка учебных
кабинетов и лабораторий и размещение в них оборудования должны обеспечивать
боковое освещение учебных мест естественным светом с левой стороны или
смешанное (верхнее с боковым).
Освещение только
верхним естественным светом допускается в лекционных аудиториях на 100 и более
мест, кабинетах дипломных и курсовых работ.
Светопроемы
кабинетов дипломных и курсовых работ рекомендуется ориентировать на С, СВ и СЗ. При другой ориентации светопроемов помещения должны
быть защищены от прямого солнечного света.
Схемы рекомендуемой
планировки и оборудования учебных кабинетов и лабораторий <*>
представлены на рис. 18 - 24.
--------------------------------
<*>
Рассчитаны на максимальную наполняемость учебной группы - 25 - 30 чел. или
половину учебной группы - 13 - 15 чел.

Рис. 18.
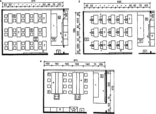
Планировка кабинетов общеобразовательного цикла
1 - стол
преподавателя; 2 - стол демонстрационный;
3 - стол
ученический; 4 - стол подоконный ленточный;
5 - стул учащегося;
6 - стул преподавателя;
7 - доска меловая;
8 - экран; 9 - шкаф-перегородка;
10 - шкаф
пристенный; 11 - тумба для проекционных
аппаратов; 12 -
подставка под телевизор;
13 - щиты
экспозиционные

Рис. 19. Планировка
лаборатории физики
1 - стол
демонстрационный; 2 - стол лабораторный физический
без надстройки; 3 -
то же, с надстройкой; 4 - стол
подоконный
ленточный; 5 - стул учащегося; 6 - стул
преподавателя; 7 -
доска меловая; 8 - шкаф-перегородка;
9 - щиты
экспозиционные

Рис. 20. Планировка
кабинета и лаборатории химии
а - кабинет химии;
б, в - лаборатории химии; 1 - стол
демонстрационный; 2
- стол ученический; 3, 4 - стол
лабораторный
химический; 5 - стул учащегося; 6 - стул
преподавателя; 7 -
доска меловая; 8 - экран;
9 -
шкаф-перегородка (шкаф пристенный); 10 - шкаф
вытяжной; 11 - щиты экспозиционные; 12 - тумба
для проекционных
аппаратов; 13 - тумба для графопроектора

Рис. 21. Планировка
кабинетов профессионально-технического,
общетехнического,
специального циклов
1 - стол
преподавателя; 2 - стол демонстрационный;
3 - стол
ученический; 4 - стол учащегося; 5 - стул
преподавателя; 6 -
доска меловая; 7 - экран;
8 -
шкаф-перегородка; 9 - тумба для графопроектора;
10 - щиты
экспозиционные; 11 - место для моделей и макетов

Рис. 22. Планировка
лабораторий профессионально-технического,
общетехнического,
специального циклов
а - лаборатория
автоматизации производства на группу
учащихся; б, в - лаборатория испытания
материалов
на 15 учащихся; 1 -
стол преподавателя; 2 - стол
демонстрационный; 3
- стол ученический; 4 - стол физический;
5 - стол-стенд для
КИП; 6 - стул учащегося; 7 - стул
преподавателя; 8 -
экран; 9 - доска меловая;
10 -
шкаф-перегородка (шкаф пристенный); 11 - шкаф
для рабочей одежды;
12 - установка авторегулятора;
13 - установка
электрорегулятора; 14 - установка
авторегулирования
релейного действия; 15 - стенд
для основ
электроники; 16 - машина для испытания пружин;
17 - машина для
испытания на трение и износ;
18 - гидравлический
пресс; 19 - машина для испытания
на кручение; 20 -
машина для испытания материалов;
21 - копер
маятниковый; 22 - твердометр;
23 - тумба для
проекционных аппаратов

Рис. 23.
Планировка кабинета начальной военной подготовки
А - учебный
кабинет; Б - комната хранения оружия;
В - препараторская; 1 - стол преподавателя;
2 - стол
демонстрационный; 3 - стол ученический;
4 - стул учащегося;
5 - стул преподавателя;
6 - доска меловая;
7 - экран; 8 - шкаф; 9 - стеллаж;
10 - стол для
чистки оружия; 11 - шкаф для учебных пособий
и материалов; 12 -
тумба для графопроектора;
13 - тумба для
проекционных аппаратов;
14 - щит
экспозиционный

Рис. 24.
Планировка кабинетов черчения, курсовых
и дипломных работ
а - кабинет
черчения на группу учащихся; б - то же,
на половину группы
учащихся; в - кабинет черчения,
курсовых и
дипломных работ; 1, 2 - столы чертежные;
3 - стол
преподавателя; 4 - тумба для графопроектора;
5 - стул учащегося;
6 - стул преподавателя;
7 -
шкаф-перегородка (шкаф пристенный); 8 - доска меловая;
9 - экран; 10 -
тумба для проекционных аппаратов;
11 - щиты
экспозиционные
3.24. В учебном
процессе используются разнообразные средства его активизации: аудиовизуальные
средства (кинопроектор, диапроектор, эпидиаскоп, кодоскоп и др.), телевидение
по центральной программе передач и по замкнутой системе, программированное
обучение.
Рациональное
использование перечисленных технических средств обучения требует их
централизации и организации центра технических средств обучения, состоящего из
следующих помещений:
кабинет ТСО -
является (в отличие от кабинетов и лабораторий) помещением, максимально
насыщенным приборами, установками, аппаратурой, контрольно-обучающими машинами
и т.д. Кроме того, кабинет предназначен для учебно-методической работы
преподавателей, осваивающих новые технические средства;
комната просмотра
информации - служит для работы преподавателей с пленочными и печатными
материалами для микрофильмирования;
пункт изготовления
и ремонта пленочных материалов - состоит из смотрового зала (фотостудии),
проявочной, препараторской и комнаты ремонта пленочных материалов;
пункт хранения и
ремонта ТСО - включает комнату хранения аппаратуры (телевизоров, магнитофонов,
кинопроекторов и т.д.) и комнату ремонта и осмотра аппаратуры.
Помимо
перечисленных помещений в центр ТСО рекомендуется включать телестудию с
видеорежиссерской аппаратурой, аппаратной для кинопроекции и для звуко- и
видеозаписи.
Планировка и
оборудование помещений с техническими средствами обучения, обучающими и
контролирующими машинами, а также вспомогательных помещений центра ТСО даны на
рис. 25 - 26, телецентра и вычислительного центра - на рис. 27 - 28.

Рис. 25.
Планировка кабинетов с обучающими,
контролирующими
машинами, вычислительной техникой
а - кабинет
технических средств обучения (ТСО) с комнатой
просмотра
информации; б, в - кабинеты иностранного языка
на половину группы
учащихся; г - кабинет информатики
и вычислительной
техники; 1, 2, 3 - столы преподавателя;
4 - стол
ученический; 5 - стол для программированного
обучения; 6 - стол
письменный; 7 - стол ученический
для кабинета
информатики; 8 - стол ученический для кабинета
иностранного языка;
9 - кабина; 10 - стул учащегося;
11 - стул преподавателя;
12 - доска меловая; 13 - экран;
14 -
шкаф-перегородка (шкаф пристенный); 15 - тумба
для графопроектора;
16, 17 - тумбы для проекционных
аппаратов; 18 -
кафедра с пультом управления; 19 - подставка
под телевизор; 20 -
щиты экспозиционные; 21 - комплект
учебной
вычислительной техники (пульт, оборудование
мест учащихся,
печатающее устройство);
22 - подставка под
магнитофон

Рис. 26.
Планировка вспомогательных помещений ТСО
А -
кинофотолаборатория; Б - пункт ремонта аппаратуры ТСО;
В - подсобное
помещение; Г - пункт хранения и обслуживания
аппаратуры ТСО; 1 -
стол письменный; 2 - стол лабораторный;
3 - стол-мойка; 4 -
стол-подставка; 5 - стол лабораторный;
6 - стул рабочий
поворотный; 7 - стеллаж универсальный;
8 - шкаф для
приборов; 9 - шкаф сушильный; 10 - шкаф
инструментальный;
11 - шкаф вытяжной; 12 - стол-верстак;
13 - стол рабочий
мастера; 14 - стол для проверки радиоламп;
15 - стол
радиомонтажный; 16 - станок токарный; 17 - станок
настольно-сверлильный;
18 - станок точильный;
19 - станок
фрезерный

Рис. 27.
Планировка телецентра
А - телестудия; Б -
видеорежиссерская аппаратная;
В - дикторская; Г -
аппаратная звукозаписи; 1 - стол
преподавателя для
ТСО; 2 - стул рабочий; 3 - стул
ученический; 4 -
стол письменный; 5 - пульт звукооператора;
6 - стол
аудиторный; 7 - стол для моделей; 8 - пульт
видеорежиссера; 9 -
световое табло; 10 - видеомонитор;
11 - телекамера; 12
- видеоконтрольное устройство;
13 - шкаф
усилительный; 14 - подставка под телевизор;
15 - шкаф; 16 -
экран навесной; 17 - телевизор;
18 - диапроектор;
19 - видеоустройство; 20 - магнитофон;
21 -
видеомагнитофон; 22 - микрофон; 23 - пульт;
24 - генератор; 25
- усилитель; 26 - громкоговоритель;
27 - коробка для
включения микрофона; 28 - трансформатор;
29 - слаботочный
шкаф

Рис. 28.
Планировка вычислительного центра
А - машинный зал
ЭВМ; Б - оперативный архив;
В - зал подготовки
данных;
Г - комната
математического обеспечения ЭВМ;
Д - ремонтная
мастерская; Е - начальник вычислительного
центра; Ж - комната
инженерного обеспечения ЭВМ;
И - диспетчерская; К - комната хранения магнитных лент;
Л - комната приема
и выдачи информации; 1 - стол письменный
однотумбовый; 2 -
то же, двухтумбовый; 3 - стол мастера;
4 - стол для
моделей; 5 - стол-приставка; 6 - кафедра
с пультом
управления; 7 - стул рабочий поворотный;
8 - стул
преподавателя; 9 - стеллаж универсальный;
10 - шкаф вытяжной;
11 - стеллаж для магнитных лент;
12 - тумба
инструментальная; 13 - шкафная секция;
14 - накопитель на
магнитных дисках; 15 - процессор;
16 - оперативное
устройство; 17 - устройство ввода-вывода;
18, 19 - устройство
ввода перфолент; 20 - станция индикации
данных; 21 -
устройство внешней памяти; 22 - устройство
печати; 23 -
таймер; 24 - расширитель; 25 - канал доступа;
26 - устройство
печати с клавиатуры; 27 - устройство
наращивания памяти;
28 - станок токарный; 29 - станок
настольно-сверлильный;
30 - станок точильный;
31 - верстак
слесарный
При проектировании
учебных помещений с дисплеями следует соблюдать рекомендации, изложенные в Прил. 3.
3.25. Помимо
предметных учебных кабинетов и лабораторий в ПТУ и техникумах предусматриваются
неспециализированные учебные помещения - аудитории:
групповые - на 25 - 30 мест;
лекционные - на 50 - 60, 75 - 90 и 100 - 120 мест.
В крупных учебных
заведениях могут быть аудитории более чем на 120 мест.
Состав
неспециализированных учебных помещений (их количество и вместимость)
принимается в зависимости от вида учебного заведения и количества в нем
учащихся (табл. 4).
Таблица 4
───────────────┬───────────────────────────────────────────────────────────────────
│ Количество аудиторий при количестве
учащихся в
├────────────────────────────────┬──────────────────────────────────
│ профтехучилищах │ техникумах
├──────┬─────┬─────┬──────┬──────┼─────┬─────┬──────┬──────┬────────
│до 400│400
-│800 -│1000 -│1500 -│400 -│800 -│1000
-│1500 -│св. 2000
│
│ 800│
1000│ 1500│ 2000│
800│ 1000│
1500│ 2000│
───────────────┼──────┼─────┼─────┼──────┼──────┼─────┼─────┼──────┼──────┼────────
Групповая │
- │ 1
│ 2 │
3 │ 4
│ 1 │
2 │ 3
│ 4 │
5
на
25 - 30 мест│ │ │
│ │ │ │
│ │ │
Лекционная │ │ │
│ │ │ │
│ │ │
на
количество │ │ │
│ │ │ │
│ │ │
мест: │ │ │
│ │ │ │
│ │ │
50 - 60
│ - │
1 │ 1
│ - │
- │ 1
│ - │
- │ 1
│ -
75 - 90
│ - │
- │ -
│ 1 │
1 │ -
│ 1 │
- │ -
│ 1
100 - 120
│ - │
- │ -
│ - │
- │ -
│ - │
1 │ 1
│ 1
Планировка
и оборудование групповой аудитории показаны на рис. 29.

Рис. 29.
Планировка групповой аудитории
1 - стол
преподавателя; 2 - стол аудиторный;
3 - стул
преподавателя; 4 - стул учащегося;
5 - доска меловая;
6 - щиты экспозиционные;
7 - экран; 8, 9 -
тумба для проекционных аппаратов
Лекционные
аудитории - неспециализированные помещения общего назначения, предназначенные
для проведения лекционных форм занятий без демонстрации опыта, состоят из зоны
преподавателя, аудиторных мест и препараторской, располагаемой в смежном
помещении.
Место преподавателя
располагается у меловой доски на подиуме. В аудиториях на 50 - 90 мест
устанавливается обычный стол преподавателя, на 100 - 120 мест и более - демонстрационный
стол.
Лекционные
аудитории до 60 мест располагаются на горизонтальном полу, а на 100 - 120 мест
и более предусматривается устройство амфитеатра. При этом подъем рядов (в целях
уменьшения высоты помещения) начинается с третьего ряда. Могут быть
запроектированы по амфитеатральной схеме и аудитории на 75 - 90 мест.
В
аудиториях с амфитеатром при наличии демонстрационного стола пол от меловой
доски до второго ряда мест должен быть
горизонтальным.
Места учащихся
оборудуют скамьями с пюпитрами. Их размеры для одного места должны быть
следующими: ширина не менее 55 см в осях, высота сидений 45, глубина пюпитра
35, высота нижней кромки пюпитра 75 см.
Объем лекционных
аудиторий при отсутствии кондиционирования воздуха должен составлять не менее 4
м3 на 1 чел.
Лекционные
аудитории на 60 и 90 мест могут быть расположены в учебной зоне, более крупные
аудитории целесообразно размещать в зоне общественно-бытовых помещений.
Необходимые при
проектировании лекционных аудиторий требования к обеспечению условий видимости,
акустике, освещению, интерьерам отражены в Нормалях НП-2.01-82 "Лекционные
аудитории учебных заведений".
Рекомендуемые
габариты лекционных аудиторий различных вместимостей показаны на рис. 30;
примеры планировки и оборудования лекционных аудиторий - на рис. 31 - 35.

Рис. 30.
Габариты лекционных аудиторий (размеры даны в м)
1 - на 60 мест; 2 -
на 90 мест; 3 - на 120 мест

Рис. 31.
Лекционная аудитория на 60 мест размерами 6 x 12 м
(перечень
оборудования см. на рис. 35)

Рис. 32. Лекционные
аудитории на 60 мест размерами
7,2 x 12 м и 9 x 9
м (перечень оборудования см. на рис. 35)

Рис. 33. Лекционная
аудитория на 90 мест размерами 9 x 12 м
(перечень
оборудования см. на рис. 35)

Рис. 34. Лекционная
аудитория на 120 мест размерами
12 x 12 м (перечень
оборудования см. на рис. 35)

Рис. 35.
Лекционная аудитория на 120 мест размерами 9 x 15 м
1 - стол
преподавателя; 2 - стол-пюпитр; 3 - кресло
с пюпитром; 4 -
кресло преподавателя; 5 - графопроектор;
6 - кинопроектор; 7
- диапроектор; 8 - автоматический
проектор; 9 -
звуковая колонка; 10 - экран для проекции
на просвет; 11 -
экран для графопроектора; 12 - экран
стационарный; 13 - доска меловая; 14 - доска меловая
раздвижная; 15 - зеркало для проекции; 16 - зашторивание;
17 - магнитофон; 18
- проигрыватель; 19 - кафедра-трибуна
3.26. В
профтехучилищах и техникумах при учебных помещениях следует предусматривать
препараторские площадью 18 м2 из расчета обслуживания
каждой лаборатории, двух смежных однородных учебных кабинетов или лабораторий.
При лабораториях
физики, химии и биологии следует предусматривать лаборантские площадью 32 м2. При кабинете начальной военной подготовки необходимо
предусматривать комнату хранения оружия со входом
только из учебного кабинета НВП (см. рис. 23).
При кабинетах
технических средств обучения, информатики и вычислительной техники, лингафонном
кабинете рекомендуется устройство препараторских, обслуживающих каждое
помещение.
Препараторские при
лекционных аудиториях на 75 - 120 мест могут приниматься площадью 36 м2. Если препараторская при
лекционной аудитории используется как кинопроекционная для проекции "на
просвет", то ее габариты принимают по расчету. Препараторская-кинопроекционная
должна иметь не менее двух выходов: один непосредственно в аудиторию, другой -
в коридор.
Рекомендуемое
расположение препараторских и лаборантских при
обслуживании ими одного учебного помещения - смежно с рабочим местом
преподавателя. Это вызвано необходимостью кратчайшей доставки
наглядных пособий, приборов и другого учебного материала из препараторской
(лаборантской) на рабочий стол (демонстрационный стол преподавателя).
При обслуживании препараторской или лаборантской двух
однородных учебных помещений рекомендуется их размещать между учебными
помещениями. В том случае, когда препараторская
обслуживает однородные лабораторию и кабинет, желательно, чтобы препараторские
примыкали к рабочему месту преподавателя в учебном помещении. Размещение препараторской в промежутке между двумя учебными помещениями
облегчает установку и использование аудиовизуальных средств, а также их удобное
хранение в расчете на два смежных учебных помещения. Схемы взаимосвязи препараторских и лаборантских по отношению к учебным
помещениям показаны на рис. 36.

Рис. 36. Размещение
препараторских
по отношению к
учебным помещениям
а - рекомендуемое; б - возможное; в - нежелательное;
А - учебное
помещение; Б - препараторская
3.27. Учебные
помещения для теоретических занятий предлагается объединять в блоки-секции.
Блок-секция представляет собой структурный элемент здания, в котором
функциональная организация учебных помещений строится по принципу родственных
дисциплин (рис. 37). Пространственная структура блок-секций
может быть основана на поэтажной блокировке нескольких (трех-пяти)
взаимосвязанных учебных помещений (например, лаборатории и кабинет физики;
лаборатория химии, биологии и экологии); кабинеты математики и вычислительной
техники и т.д.). Группа помещений располагается вокруг зальных рекреаций
или в отдельных случаях коридорных рекреаций.

Рис. 37.
Группировка помещений
теоретических
занятий в учебные секции
1 - учебные секции;
2 - вестибюль; 3 - обеденный зал;
4 - спортивный зал;
5 - вспомогательные
и подсобные
помещения
3.28. Ряд
лабораторий технического и специального циклов в профтехучилищах и техникумах
по габаритам, внутреннему оборудованию и санитарно-гигиеническому режиму
использования занимают как бы промежуточное положение между теоретическими и
производственными группами помещений. Отнесение названных лабораторий к зоне
расположения теоретических или учебно-производственных помещений
устанавливается в каждом конкретном случае в зависимости от названных выше
факторов или от архитектурно-строительных, технологических и гигиенических
характеристик.
В тех случаях,
когда лаборатории технического и специального циклов являются крупногабаритными
(площадью более 81 м2), их чаще всего располагают в
комплексе с учебно-производственными мастерскими и рассматривают как составную
часть зоны (группы) учебно-производственных мастерских. Крупногабаритные
лаборатории при незначительной глубине помещений (до 6 м) имеют слишком большую
протяженность, превышающую 12 м, что нарушает акустические свойства учебных
помещений и ухудшает видимость зоны преподавателя со стороны отдаленных учебных
мест. В подобных случаях лаборатории не рекомендуется размещать в учебных
корпусах. Во всех случаях, когда лаборатории технического и специального цикла
оснащаются тяжелым и крупногабаритным оборудованием, т.е. отличаются от группы
помещений теоретических занятий высотами этажей и нагрузкой на перекрытия, их
следует располагать, как правило, в составе группы учебно-производственных
мастерских. Крупногабаритные лаборатории особенно специального цикла в
наибольшей степени встречаются при проектировании техникумов. По этой причине
при проектировании корпусов отдельных учебно-производственных мастерских
техникумов в них включают как составную часть крупногабаритные лаборатории
площадью более 81 м2.
3.29. При
проектировании техникумов учебно-лабораторные здания могут быть выделены в
отдельные корпуса-блоки. В учебно-лабораторных корпусах крупных техникумов
часто выделяются лабораторные блоки как самостоятельные составные элементы,
которые должны быть функционально взаимосвязаны между собой и с помещениями
(корпусами) теоретических занятий (рис. 38). Для профтехучилищ сельского
профиля характерно производственное обучение проводить в основном в форме
лабораторно-практических занятий. Поэтому для сельских ПТУ требуется наличие не
корпуса мастерских, а корпуса лабораторно-практических занятий, который по
назначению и функционально-планировочной организации является по сути
учебно-производственным. Лаборатории специального цикла в
ряде учебных заведений, например здравоохранения, искусства, культуры и т.д.,
могут проектироваться в виде самостоятельных корпусов-блоков, оснащенных
необходимым оборудованием для подготовки данной специальности, и по существу
представлять собой специфические учебно-лабораторные тренажерные устройства и
комплексы: во многих случаях база для специальных лабораторно-практических
занятий объединяется с учреждениями, соответствующими профилю учебного
заведения. Например, средние специальные учебные заведения
здравоохранения объединяются с лечебными учреждениями в учебно-лечебные
комплексы; сельскохозяйственные техникумы - с агропромышленными комплексами в
виде совхозов-техникумов и т.д.

Рис. 38.
Лабораторные блоки техникумов
1 - вестибюль; 2 -
актовый зал; 3 - блок общеобразовательной
подготовки; 4 -
лабораторный блок; 5 - технические
помещения; 6 -
книгохранилище; 7 - технический центр;
8 - спортивный зал
и плавательный бассейн;
9 - подсобные
помещения столовой;
10 -
административные помещения
Учебно-производственные
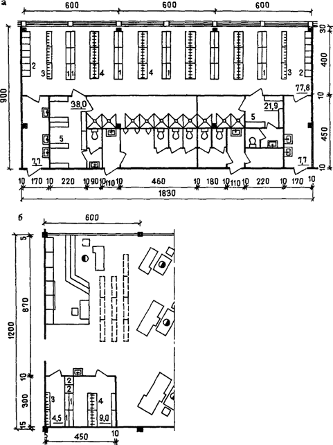
мастерские
3.30. Состав
учебно-производственных мастерских (УПМ) зависит от количества учащихся в
учебном заведении, подготавливаемых профессий (специальностей) и определяется
исходя из учебных планов и программ.
Собственно
мастерские профтехучилищ должны рассчитываться на односменный режим для данного
контингента учащихся и использование во вторую смену (в полсмены) учащимися
общеобразовательных школ, местных молодежных кооперативов и т.п.
При организации
учебного процесса на полигоне или на базовом предприятии вместимость УПМ
соответственно уменьшается.
Расчетную
наполняемость учебной мастерской необходимо принимать, как правило, на одну
группу учащихся. Учебные мастерские наполняемостью на половину группы
предусматриваются для сложных профессий.
Для подготовки по
сложным профессиям учебные мастерские можно проектировать на группу учащихся,
но при наличии двух мастеров производственного обучения в группе; при этом желательно,
чтобы мастерская по площади не превышала 180 - 216 м2,
из-за сложности визуального контроля учащихся с рабочего места мастера.
3.31. Габариты
мастерских должны назначаться в соответствии с единой модульной системой (ЕМС)
и проектироваться с сеткой колонн размерами 6 x 6, 6 x 9, 6 x 12, 6 x 18, 6 x
24, 9 x 12, 9 x 24, 9 x 18, 12 x 12, 12 x 24 м.
Необходимая площадь
учебной мастерской определяется исходя из суммы площадей, требуемых для
размещения технологического оборудования, инструктажа учащихся, места мастера,
стеллажей и т.д. Площадь мастерской определяется расстановкой оборудования по
технологическим нормативам и требованиям, предъявляемым к предприятиям
соответствующих отраслей промышленности с учетом установки оборудования,
применяемого для учебных целей.
Площадь основных
учебных мастерских для наиболее массовых профессий рекомендуется принимать по
табл. 5.
Таблица 5
────────────────────────────────────┬────────────┬─────────────────────────
Мастерская │ Группа или │ Площадь, м2
│
полгруппы
├─────────────┬───────────
│ учащихся │
на одного │мастерской
│ │ учащегося
│
────────────────────────────────────┼────────────┼─────────────┼───────────
1. Арматурная │ 1/2
│ 12 - 14,4 │ 180 - 216
2. Газосварочная │ 1/2
│ 7,2 - 10,8 │ 108 -
162
3. Малярная │ 1/2
│ 9,6 - 10,8 │ 144 -
162
4. Каменщиков │ 1/2
│ 7,2 - 9,6 │ 108 - 144
5. По монтажу и демонтажу машин │
1/2 │ 10,8 - 12
│ 162 - 180
и механизмов │ │ │
6. По монтажу и демонтажу │ 1/2
│ 10,8 - 12 │ 162 - 180
сельскохозяйственных тракторов │ │ │
и автомобилей │ │ │
7. По монтажу сельскохозяйственных
│ 1/2 │
10,8 - 12 │ 162 - 180
комбайнов │ │ │
8. Процессов и аппаратов │ 1/2
│ 18 - 21,6 │ 270 - 324
9. Слесарей КИПиА │ 1/2
│ 6 - 7,2 │
90 - 108
10.
Слесарная │
1/2 │ 6 - 7,2
│ 90 - 108
│ 1 │
4,8 - 6 │ 144 - 180
11.
Столярная
│ 1/2 │
9,6 - 12 │ 144 - 180
│ 1 │
7,2 - 9,6 │ 216 - 252
12.
Токарная
│ 1/2 │ 14,4 - 16,8 │ 216 - 252
│ 1 │
12 - 14,4 │ 360 - 432
13.
Фрезерная
│ 1 │
12 - 14,4 │ 360 - 432
14.
Электромонтажная │ 1/2
│ 7,2 - 10,8 │ 108 -
162
│ 1 │
6 - 9 │ 180 - 270
15.
Электрогазосварочная
│ 1/2 │ 10,8 - 14,4 │ 162 - 216
Указанные в таблице
площади мастерских уточняются в зависимости от конкретного технологического
оборудования.
Учебно-производственные
помещения должны освещаться естественным боковым или верхним светом.
3.32. В
соответствии с методикой производственного обучения помещения
учебно-производственных мастерских рекомендуется разделять на следующие
функциональные зоны: 1 - демонстрационно-преподавательскую; 2 - зону
инструктажа; 3 - учебно-производственную зону; 4 - зону временного
складирования.
Демонстрационно-преподавательская
зона должна включать: рабочее место мастера со столом и стулом, наиболее
типичный станок, аппарат, прибор или оборудование, используемое на производстве
и в данной мастерской по подготавливаемой профессии (которые лучше
устанавливать на подиум), настенную меловую доску; место для размещения
наглядных пособий и плакатов; специальные шкафы для хранения наглядных пособий,
моделей и макетов и т.п. Рабочее место
мастера следует совмещать с электрораспределительным щитом или с пультом
управления, с помощью которых преподаватель будет иметь возможность оперативно
реагировать на создавшуюся ситуацию в учебной мастерской, легко и быстро
включать и отключать станки и оборудование, на котором работают учащиеся.
Зону инструктажа
учащихся следует оборудовать скамейками или ученическими столами,
расположенными перед рабочим местом мастера (рис. 39). Площадь зоны инструктажа
определяется из расчета 1,4 м2 на 1 место.

Рис. 39.
Зоны инструктажа учащихся
в учебно-производственных
мастерских
а - в слесарной
мастерской на 15 мест; б - то же,
на 30 мест;
в - в механической мастерской на 15 мест;
г - то же, на 30 мест; 1 - стол преподавателя; 2 - стул;
3 - блок шкафов с
меловой доской; 4 - верстак
демонстрационный; 5 - скамья складируемая;
6 - стул с
пюпитром; 7 - станок токарно-винторезный
Организация
учебно-производственной зоны зависит от типа оборудования, характера
технологического процесса, санитарно-гигиенических требований, характера
освещения и других условий, которые в мастерских одного профиля часто бывают
различными.
Зона временного
складирования необходима в мастерских для хранения инструментов, приспособлений
и инвентаря, а также заготовок и незаконченных работ учащихся. Она должна быть
оборудована открытыми или закрытыми стеллажами.
3.33. При
учебно-производственных помещениях следует предусматривать бытовые помещения:
гардеробные
площадью на 1 рабочее место 0,15 м2 для хранения
уличной одежды и 0,4 м2 для хранения домашней и рабочей одежды;
душевые и
умывальники из расчета 1 душевая сетка на 15 человек и 1 кран на 30 чел.;
уборные из расчета
1 унитаз на 30 женщин или 1 унитаз и 1 писсуар на 40 мужчин.
Гардеробные,
душевые, умывальники и уборные следует рассчитывать на количество учащихся (в
наиболее многочисленной смене), находящихся в этом здании. Для уличной одежды в
гардеробной необходимо предусматривать крючки на вешалках, а для рабочей и
домашней одежды - гнезда в закрытых шкафах и крючки на вешалках. Состав и
оборудование бытовых помещений приведены на рис. 40.

Рис. 40
Бытовые помещения мастерских
а -
централизованный бытовой блок мастерских на 150 мест;
б - гардеробный блок механической мастерской на 30 мест;
1 - шкаф открытый для рабочей одежды; 2 - шкаф закрытый
для рабочей и
домашней одежды; 3 - вешалка напольная
односторонняя; 4 - то же, двухсторонняя;
5 - скамья для
переодевания
3.34. Комната
старшего мастера принимается 9 м2 в учебных заведениях
до 800 учащихся, 12 м2 - на 1000 и более учащихся. Комната мастеров
производственного обучения предусматривается: в учебных заведениях до 600
учащихся - 18 м2, на 600 - 800 - 24 м2, на 800 - 1000
- 30 м2, на 1000 - 1500 - 36 м2 и на 1500 - 2000 - 42 м2.
3.35. К
вспомогательным производственным помещениям (рис. 41) относятся склад
заготовок, склад готовой продукции, инструментальная кладовая.

Рис. 41.
Производственно-вспомогательные
помещения
мастерских
а -
производственная мастерская; б - ремонтная мастерская;
в - инструментально-раздаточная кладовая;
г - склад материалов; д - склад материалов
с заготовительным
отделением; 1 - стол рабочий;
2 - стул; 3 -
стеллаж ячеечный; 4 - стеллаж;
5 - шкаф
инструментальный; 6 - станок
токарно-винторезный;
7 - станок отрезной ножовочный;
8 - станок
фрезерный универсальный; 9 - стенд сборочный;
10 - тумба для
инструментов; 11 - верстак слесарный;
12 - станок
вертикально-сверлильный; 13 - станок
токарно-винторезный;
14 - станок плоско-шлифовальный;
15 - станок
кругло-шлифовальный; 16 - станок точильный;
17 - подставка под
станковое оборудование;
18 - подставка для
разметочной плиты;
19 - электроталь
В зависимости от
профиля ПТУ в состав УПМ могут включаться и другие вспомогательные помещения.
Например, сушильные камеры, помещения по подготовке эмульсии, компрессорные,
трансформаторные и т.д.
Состав и площади
складских помещений зависят также и от вида продукции, выпускаемой в процессе
производственного обучения.
Планировка и
оборудование основных учебных мастерских показаны на
рис. 42 - 44.

Рис. 42.
Планировка учебно-производственных мастерских
профиля
машиностроения и металлообработки
а - токарная
мастерская; б - электромонтажная мастерская;
1 - стол мастера; 2
- стул; 3 - доска меловая; 4 - шкаф
для одежды; 5 -
скамья; 6 - тумба к рабочему месту
станочника; 7 -
табурет; 8 - верстак слесарный; 9 - станок
токарно-револьверный;
10 - автомат токарно-револьверный;
11, 12, 13, 14, 15,
16 - станок токарно-винторезный;
17 - станок
вертикально-сверлильный; 18 - станок
точильно-шлифовальный;
19 - агрегат пылеулавливающий;
20 - электропечь;
21 - станок настольно-сверлильный;
22 - труборез; 23 -
трубоприжим; 24 - станок намоточный;
25 - установка
компрессорная; 26 - кабина
для
электромонтажных работ; 27 - пресс реечный;
28 - стенд бетонный
для электромашин; 29 - скамья кабельная;
30 - подставка для
электромашин; 31 - шкаф вытяжной;
32 - пресс-ножницы; 33 - трубочный механизм;
34 - электроталь;
35 - шкаф сушильный

Рис. 43. Планировка
учебно-производственных мастерских
строительного
профиля
а - мастерская каменщиков; б - столярно-плотницкая
мастерская; 1 -
стол мастера; 2 - стул; 3 - доска меловая;
4 - шкаф для
одежды; 5 - скамья; 6 - рабочее место
каменщика; 7 -
клетка кирпича; 8 - ящик для раствора;
9 - вибросито; 10 -
растворосмеситель; 11 - растворонасос;
12 - щит для
приготовления раствора; 13 - тачка
для раствора; 14 -
тачка для кирпича; 15 - ларь для песка;
16 - бункер для
глины; 17 - верстак столярный; 18 - табурет;
19 - верстак
слесарный; 20 - клееварка; 21 - станок
вертикально-сверлильный;
22 - станок ажурно-лобзиковый;
23 - станок
токарный по дереву;
24 - агрегат
пылеулавливающий

Рис. 44.
Планировка учебно-производственных мастерских
сельского хозяйства
а -
мастерская-лаборатория тракторов;
б - мастерская-лаборатория комбайнов; 1 - стол мастера;
2 - стул; 3 - доска
меловая; 4 - скамья; 5 - верстак
слесарный; 6 - узлы
комбайна; 7 - кран мостовой;
8 - узлы
автомобиля; 9, 10, 11 - узлы трактора;
12 - стеллаж
Библиотеки
3.36. Библиотеки
являются учебно-информационными подразделениями профессиональных и средних
специальных учебных заведений.
Библиотеку
следует размещать в тихой зоне учебного здания, изолированной от актового и
спортивного залов, столовой и учебно-производственных мастерских.
Помещения библиотек
профессионально-технических и средних специальных учебных заведений разделяются
на две основные функциональные зоны: зону книгохранения и зону обслуживания
читателей (рис. 45). В зоне книгохранения, закрытой для доступа читателей,
размещаются стеллажи, на которых расположен фонд литературы. В зоне
обслуживания читателей размещается каталог; стеллажи открытого доступа,
традиционные читательские места, кабины для индивидуальных занятий, места для
отдыха и чтения, выставочные стенды.

Рис. 45. Планировка
и оборудование
помещений
библиотеки ПТУ на 720 учащихся
А - закрытое
книгохранилище; Б - открытый доступ;
В - зона читательских мест; Г - каталог; Д -
зона
индивидуальных
кабин; Е - зона отдыха; 1 - стеллаж
двухсторонний; 2 -
стеллаж односторонний; 3 - журнальный
столик; 4 - диван
трехместный; 5 - кафедра выдачи
литературы; 6 -
стол читательский двухместный;
7 - стул
читательский; 8 - кресло рабочее поворотное;
9 - кабина для
индивидуальных занятий;
10 - шкаф
каталожный
Кафедра выдачи
литературы и перспективных носителей информации (микрофильмов, магнитных лент и
т.п.) размещается на границе зон книгохранения и обслуживания читателей,
являясь одновременно и информационно-контрольным пунктом библиотеки.
Расположение кафедры выдачи должно быть таково, чтобы находящийся за ней
библиотекарь мог контролировать перемещение читателей в пределах библиотеки и
их работу в зоне обслуживания.
3.37. Целесообразно
оборудовать читальные залы библиотек ПТУ и техникумов кабинами для
индивидуальных занятий, оснащенных комплектом технических средств обучения. В
состав полного комплекта ТСО входят: малогабаритный телевизор, терминал ЭВМ,
аппарат для чтения микрофильмов, видеомагнитофон. В зависимости от реальных
потребностей и возможностей конкретной библиотеки могут осуществляться различные
комбинации перечисленных элементов комплекта ТСО. Кабина для индивидуальных
занятий представляет собой изолированный бокс размером 1600 x 1200 x 2300 мм,
оснащенный помимо технических средств обучения одноместным читательским столом,
креслом, индивидуальным источником света и элементом системы вентиляции (рис.
46). Учитывая наличие индивидуального освещения, кабины для индивидуальных
занятий следует размещать в наименее освещенных зонах читального зала.

Рис. 46.
Кабина для индивидуальных занятий
Учитывая
многообразие читательских потребностей, читательские места в библиотеках
профтехучилищ и техникумов могут быть трех типов: традиционные (стол
читательский, 2 стула), перспективные (кабины и полукабины для индивидуальных
занятий) и оригинальные (кресла, группы кресел и диваны для чтения, отдыха и
общения).
Расположение мебели
и оборудования в зоне обслуживания читателей должно соответствовать
функциональной схеме, обеспечивающей конкретные потребности различных групп
читателей (учащиеся, преподаватели, работники базового предприятия).
Библиотеки учебных
заведений могут решаться по принципу свободной планировки: разделяются на зоны
с помощью мебели и оборудования, что позволяет производить их функционально-планировочное
совершенствование в соответствии с изменяющимися требованиями учебного
процесса.
3.38. Состав и
площади помещений библиотек приводятся ниже:
количество читателей .................. 100%
учащихся и 100% преподавателей
количество читательских мест
.......... не менее 9% количества читателей
количество единиц общего фонда
(в ПТУ и техникумах), тыс. ед.
........ не менее 50 на одного читателя
В том числе:
основное
.......................... 70% общего фонда
открытое
.......................... 30%
" "
количество единиц общего фонда
(в техникумах), тыс. ед. .............. 60 единиц на
1 читателя
В том числе:
основное
.......................... 70% общего фонда
открытое
.......................... 30%
" "
площадь помещений, м2:
абонемент
......................... не менее 1,8 м2 на одно
читательское место
читальный
зал ..................... не менее 2,4 м2 на одно
читательское место
книгохранилище для учащихся
и преподавателей (в ПТУ и техникумах):
основное
.......................... не менее 2,5 м2 на 1000
единиц
хранения
открытое
.......................... не менее 4,5 м2 на 1000
единиц
хранения
площадь библиотеки, м2:
в ПТУ
............................. не менее 0,6 м2 на
одного учащегося
в
техникумах ...................... не менее 0,8 м2 на
одного учащегося
Физкультурно-спортивные
сооружения
3.39. Размеры и
количество спортивных залов и помещений профтехучилищ и техникумов следует
принимать по табл. 6.
Таблица 6
─────────────────────────┬──────────────┬──────────────────────────────────
Залы и помещения │Единовременная│ Количество учебно-спортивных
│ пропускная │
залов и помещений при
│ способность,
│ количестве
учебных групп
│ чел.
├────┬────┬────┬────┬────┬────┬────
│ │ 8 │ 12 │ 18 │ 24 │ 32
│ 48 │ 64
─────────────────────────┼──────────────┼────┼────┼────┼────┼────┼────┼────
Учебно-спортивный
зал │ │ │
│ │ │
│ │
размером,
м: │ │ │
│ │ │
│ │
36 x 18 │ 75
│ - │ - │ -
│ 1 │ 1 │ 1
│ 1
30 x 18 │ 60
│ - │ - │ 1
│ - │ - │ -
│ -
24 x 12 │ 30
│ 1 │ 1 │ -
│ - │ - │ -
│ 1
Помещение
для занятий │ │ │
│ │ │
│ │
специальных
медицинских │ │ │
│ │ │
│ │
групп
размером 18 x 9 м │ │ │
│ │ │
│ │
(12
x 12; 12 x 9) │ │ │
│ │ │
│ │
Площади подсобных
помещений при спортивных залах следует принимать по табл. 7.
Таблица 7
──────────────────────────────┬────────────────────────────────────────────
Помещения │ Площадь помещения, м2,
при количестве
│ учащихся
├───────┬──────┬──────┬──────┬──────┬────────
│до 400
│400 - │600 - │800 - │1000 -│св. 1500
│ │
600│ 800│ 1000│
1500│
──────────────────────────────┼───────┼──────┼──────┼──────┼──────┼────────
Снарядная при спортивном зале │ 21
│ 21 │
21 │ 21
│ 48 │
48
Кладовая
для хранения │ 18
│ 18 │
18 │ 18
│ 36 │
36
спортинвентаря │ │ │ │ │ │
Кладовая
для хранения лыж │ 30
│ 40 │
60 │ 80
│ 120 │ 160
и
коньков │ │ │ │ │ │
Комната
преподавателя │ 9
│ 9 │
12 │ 12
│ 12 │
12
физического
воспитания │ │ │ │ │ │
Раздевальня,
душевые, │ 42
│ 42 │
84 │ 84
│ 126 │ 126
санитарные
узлы для юношей │ │ │ │ │
│
и
девушек │ │ │ │ │ │
Схема планировки и
оборудования спортивного зала размером 30 x 18 м дана на рис. 47.

Рис. 47.
Планировка и оборудование
спортивного зала 30
x 18 м
1 - стенка
гимнастическая; 2 - конь гимнастический
с ручками; 3 -
скамейка гимнастическая; 4 - бревно
гимнастическое; 5 - канат для лазания; 6 - шест для лазания;
7 - стена
баскетбольная; 8 - брусья гимнастические;
9 - кольца
гимнастические; 10 - козел гимнастический;
11 - щит с кольцом;
12 - вышка судейская; 13 - лонжа
подвесная; 14 -
стойка волейбольная; 15 - стойка теннисная;
16 - ринг
боксерский; 17 - помост для поднятия тяжестей;
18 - перекладина
гимнастическая
3.40. В составе
физкультурно-спортивных сооружений целесообразно предусматривать плавательный
бассейн в следующих случаях:
при подготовке в
учебных заведениях квалифицированных кадров по профессиям плавсостава (водного
транспорта, рыбного хозяйства и т.д.);
в учебных
заведениях специального назначения;
для группы учебных
заведений на 1500 и более учащихся при размещении в городе;
для группы учебных
заведений на 700 и более учащихся при размещении в сельской местности.
Размер ванны
бассейна определяется заданием на проектирование. Рекомендуется размер ванны
бассейна принимать не менее 25 x 8,5 м.
3.41. В
профтехучилищах и техникумах следует предусматривать 25 - 50-метровый учебный
тир для стрельбы из малокалиберного оружия. Количество стрелковых мест в учебном
тире принимается в зависимости от количества учащихся в учебном заведении из
расчета 210 учащихся на 1 стрелковое место. При этом необходимо учитывать
проведение занятий для учащихся всех курсов (с охватом 100% численности
учащихся - юношей и девушек). Минимальное число стрелковых мест в учебном тире
- 4 - 5.
Учебные тиры могут
проектироваться встроенными в здания учебных заведений
или отдельно стоящими - крытыми и полуоткрытыми <*>.
--------------------------------
<*>
Полуоткрытые тиры допускается размещать на расстоянии не менее 250 м от зданий
учебных заведений и от жилой застройки.
При строительстве
отдельно стоящих тиров можно применять специально разработанные типовые
проекты.
Встроенные тиры
должны разрабатываться в соответствии с нормируемыми параметрами основных
элементов тиров, их оборудования и освещенности, указанными в табл. 8.
Таблица 8
─────────────┬────────────────────────────────────┬────────────────────────
Нормируемые │ Параметры │ Величина
элементы │ │
─────────────┼────────────────────────────────────┼────────────────────────
Учебный
тир │Дистанция стрельбы, м
│25 - 50
│Допускаемое отклонение в
длину, м
│0,1
│Число
стрелковых мест (огневых │4 -
5
│позиций, шт.) │
│Тип, модель и расчетный калибр
│Малокалиберные винтовки
│применяемого оружия │Т03-8, Т03-12 калибром
│ │5,6 мм
─────────────┼────────────────────────────────────┼────────────────────────
Стрелковая │Глубина (длина) огневой позиции, м │2,5
галерея
и │Ширина огневой позиции, м
│1,25 - 1,6
ее
основные
│Ширина прохода для руководителя │1,1
части │занятий за огневыми позициями, м │
│Глубина площади для
наблюдения, м
│от 1,5
│Высота от пола стрелковых
мест │3,3
│до выступающих конструкций
потолка │
│(навеса), м │
│Минимально допустимая
высота │2,4
│во
встроенных тирах (в том числе │
│размещаемых в
подвальных │
│помещениях),
м │
─────────────┼────────────────────────────────────┼────────────────────────
Огневая
зона │Высота в крытых и полуоткрытых тирах│2,5
│(в
последних - до низа поперечных │
│перехватов над поверхностью
огневых │
│позиций), м │
│Высота во
встроенных тирах (в том │2,1
│числе размещаемых
в подвальных │
│помещениях),
м │
─────────────┼────────────────────────────────────┼────────────────────────
Размещение │Оптимальная высота центра мишени │0,25
центров │над уровнем пола огневой позиции, м │
мишеней │Допустимое смещение центра мишени
по│0,2
│вертикали (от оптимальной
высоты), м│
│Допустимое смещение центра
мишени │0,75
│по
горизонтали (от середины огневой │
│позиции), м
│
─────────────┼────────────────────────────────────┼────────────────────────
Размеры
щита │Мишени для стрельбы из винтовки, м:
│
для
крепления│ высота │0,13
мишеней │
ширина
│0,13
│Максимально допустимый
размер щита │
│для крепления нескольких
мишеней │
│одновременно для одного
стрелка, м: │
│ высота │0,85
│ ширина │0,55
─────────────┼────────────────────────────────────┼────────────────────────
Уровни │Вертикальная,
в плоскости мишеней с │500
освещенности
│черным кругом, лк
│
мишеней
и │Горизонтальная, на уровне
пола │75
отдельных │огневых позиций, лк │
частей │Горизонтальная, на уровне
пола │50
огневой
зоны │площадки для наблюдения, лк
│
│Горизонтальная,
на уровне │10 - 50
│поверхности (пола) огневой
зоны, лк │
│Горизонтальная,
на уровне 0,8 м над │100
│полом блиндажа, лк │
│Горизонтальная,
на уровне 0,8 м над │200
│полом в помещении для
подготовки │
│стрелков и чистки
оружия │
Схема планировки
встроенного тира показана на рис. 48.

Рис. 48. Схема
планировки учебного тира
3.42. На
участках профтехучилищ и техникумов предусматриваются открытые плоскостные
спортивные сооружения для проведения занятий в соответствии с учебной
программой физического воспитания, а также для занятий массовыми видами спорта
во внеучебное время. Рекомендуемый набор открытых плоскостных спортивных
сооружений для учебных занятий включает: круговые и прямые беговые дорожки,
секторы для легкоатлетических прыжков и для легкоатлетических метаний, футбольное
поле (перечисленные выше сооружения объединяются, как правило, в спортивное
ядро), а также игровые площадки - для баскетбола, волейбола, гимнастическая,
полоса препятствий. Кроме названных открытых спортивных сооружений возможна
организация площадок для игр, популярных среди учащихся. Рекомендуемый перечень
и количество открытых плоскостных спортивных сооружений дан в табл. 9.
Таблица 9
───────────────────────────────────┬───────────────────────────────────────
Открытые плоскостные
спортивные │ Количество открытых плоскостных
сооружения │ спортивных сооружений при
количестве
│ учащихся
├───────┬─────────┬───────────┬─────────
│до
400 │400 - 600│600 - 1000 │св. 1000
───────────────────────────────────┼───────┼─────────┼───────────┼─────────
Футбольное
поле 75 x 50 м, │ 1
│ 1 │
1 │ -
круговая
беговая дорожка, секторы │ │ │ │
для
прыжков и метаний
│ │ │ │
Футбольное
поле 90 x 60 м, │ -
│ - │
- │ 1
круговая
беговая дорожка, секторы │ │ │ │
для
прыжков и метаний
│ │ │ │
Площадки
для игр: │ │ │ │
волейбол │ 1
│ 1 │
2 │ 2
баскетбол │ 1
│ 1 │
1 │ 1
ручной мяч │ -
│ 1 │
1 │ 1
теннис │ -
│ - │
1 │ 1
городки │ -
│ 1 │
1 │ 1
бадминтон │ -
│ - │
1 │ 1
настольный теннис │ 1
│ 1 │
1 │ 2
Площадка
для гимнастики │ 1
│ 1 │
1 │ 1
Полоса
препятствий │ 1
│ 1 │
1 │ 1
Примечания. 1.
Приведенный набор открытых плоскостных спортивных сооружений может меняться с
учетом региональных условий.
2. Площадка для
гимнастики и полоса препятствий предназначается также для учебных занятий по
начальной военной подготовке.
3. Строительство
открытых плоскостных спортивных сооружений должно осуществляться по типовым
проектам. Пропускная способность, размеры, планировка, оборудование и
конструкции покрытий плоскостных сооружений определяются типовыми проектами.
При размещении
спортплощадок на участке и их ориентации по сторонам света необходимо принимать
во внимание, что площадки используются в утренние, дневные и вечерние часы.
Указанный в табл. 9
набор открытых плоскостных спортивных сооружений может быть организован, как
правило, на участках учебных заведений, расположенных на свободной территории.
Согласно градостроительным нормам земельные участки учебных заведений,
расположенных в районах реконструкции, а также гуманитарных техникумов
допускается сокращать на 50%. Такое сокращение участков достигается в основном
за счет спортивной зоны. Для условий строительства профтехучилищ и техникумов
на затесненных участках предлагаются спортивные зоны с ограниченным набором
спортсооружений (табл. 10).
Таблица 10
───────────────────────────────────────────────────────────────────────────
Состав спортивных зон Площадь,
га
───────────────────────────────────────────────────────────────────────────

1.
Универсальная площадка 60 x 40 м; может
0,4
быть трансформирована
в три площадки
20 x 40 м

2.
Малое спортивное ядро с четырьмя круговыми 0,8
беговыми дорожками 250 м, с шестью прямыми
беговыми дорожками 100 м, тренировочным
футбольным полем уменьшенного размера
70 x 35 м, которое
может быть трансфор-
мировано в несколько игровых площадок

3.
Спортивное ядро с футбольным полем 1,2
80 x 50 м, с четырьмя круговыми беговыми
дорожками 333,3 м, с шестью прямыми
беговыми дорожками 128 м, секторами
для прыжков в толкании ядра
- из
спецсмесей;
- естественное покрытие.
3.43. Для
занятий по программе начальной военной подготовки на участке учебных заведений
необходимо предусматривать учебную площадку по тактической подготовке и
гражданской обороне, площадку для занятий по строевой подготовке. Место для
практического изучения приемов и правил стрельбы, а также место практического
изучения обязанностей часового выделяются в самостоятельные площадки (если
позволит площадь участка) или оборудуются на учебной площадке по тактической
подготовке и гражданской обороне.
Для группы учебных
заведений, размещаемых на затесненных участках, предлагается создавать
кооперированные военно-спортивные городки (рис. 49), предназначенные для
проведения занятий физвоспитания, тренировочных занятий, спортивных
соревнований, отработки упражнений по НВП и сдачи норм ГТО. Военно-спортивные
городки смогут использоваться совместно несколькими профтехучилищами, а также
ПТУ с другими учебными заведениями - школой, техникумом. Такие городки могут
размещаться на участке одного из учебных заведений или обособленно.

Рис. 49.
Кооперированные военно-спортивные городки
1 - плавательный
бассейн; 2 - павильон-раздевальная;
3 - спортивное
ядро; 4 - площадка защитных сооружений,
противорадиационной
и противохимической защиты;
5 - гимнастическая
площадка; 6 - площадка отработки
нормативов; 7 -
площадка для практического изучения
обязанностей
часового; 8 - площадка для практического
изучения приемов и
правил стрельбы; 9 - учебный плац;
10 - учебный тир;
11 - полоса препятствий
Зрелищно-клубные
помещения
3.44. Планировка и
оборудование актовых залов профтехучилищ и техникумов должны обеспечивать
возможность проведения конференций, заседаний, собраний, концертов,
самодеятельных спектаклей, показа широкоэкранных кинофильмов.
При каждом актовом
зале следует предусматривать киноаппаратную площадью 23 м2,
а также радиоузел, дикторскую и комнату хранения и ремонта аппаратуры суммарной
площадью: в учебных заведениях до 600 учащихся - 12 м2, на 600 - 1000 - 18 м2,
на 1000 и более - 24 м2.
Площадь фойе при
актовом зале определяется из расчета 0,6 м2 на 1 место
в зале. Фойе трактуется как помещение многофункционального назначения и может
использоваться как дискотека. С этой целью при фойе должно быть подсобное
помещение площадью не менее 10 м2.
3.45.
Клубно-кружковые помещения включают комнаты для самодеятельных коллективов
(артистические уборные при эстраде), универсальные клубные помещения по
интересам, кружки технического творчества, художественного и национальных видов
творчества с кладовой хранения инвентаря. Размеры помещений для разных типов
зданий приводятся в табл. 11.
Таблица 11
─────────────────────────────┬─────────────────────────────────────────────
Помещения │ Площадь помещений, м2,
при количестве
│ учащихся
├───────┬──────┬──────┬───────┬──────┬────────
│до 400
│400 - │600 - │800 -
│1000 -│св. 1500
│ │
600 │ 800│
1000 │ 1500│
─────────────────────────────┼───────┼──────┼──────┼───────┼──────┼────────
Комната
самодеятельных
│15 x 2 │15 x 4│15 x 4│15 x 4 │15 x
5│ 15 x 5
коллективов (артистические │
│ │ │ │ │
уборные
при эстраде) │ │ │ │ │ │
Универсальное
клубное │ 60
│ 72 │ 72
│ 90 │
90 │ 108
помещение
по интересам │ │ │ │ │ │
Технического
творчества │ 30
│ 36 │ 42
│ 48 │
60 │ 72
Художественного
и │ 54
│ 60 │ 72
│ 90 │ 108
│ 120
национальных
видов творчества│
│ │ │ │ │
Кладовая
хранения инвентаря │ 10
│ 10 │ 10
│ 10 │
10 │ 10
Из названных
кружковых помещений комната технического творчества может быть вынесена из
клубного блока (группы клубно-кружковых помещений) и приближена к
учебно-производственным мастерским профтехучилищ. Подобное расположение комнаты
технического творчества позволяет учащимся, занимающимся в технических кружках,
использовать станочное оборудование мастерских для изготовления деталей машин,
макетов и других поделок.
Внутренняя
планировка кружковых помещений определяется их назначением. Клубное помещение
по интересам оборудуется столами и стульями в зависимости от конкретного
использования. В универсальном клубном помещении необходимо предусмотреть
механическое зашторивание, подвеску экрана, установку и места хранения
аудиовизуальной аппаратуры. Если в училище имеется собственная телестудия,
необходимо предусмотреть и установку в клубном помещении видеоаппаратуры и
телевизоров с большим экраном.
Помещения
административно-хозяйственного
и общественного
назначения
3.46. Административно-хозяйственные помещения включают служебные кабинеты
директора, заместителей и помощника директора училища, заведующего учебной
частью, старшего мастера, преподавательскую, комнату мастеров, методический
кабинет, учебную часть, канцелярию, бухгалтерию, комнату техперсонала, архив,
ротаторную, экспедицию (табл. 12).
Таблица 12
─────────────────────────┬─────────────────────────────────────────────────
Наименование помещений │ Площадь помещений, м2, при количестве учащихся
├──────┬───────┬──────┬────────┬────────┬─────────
│до
400│400 - │600 - │800
- │1000 - │св. 1500
│ │
600 │ 800│ 1000│ 1500│
─────────────────────────┼──────┼───────┼──────┼────────┼────────┼─────────
Кабинет
директора │ 18
│ 18 │
24 │ 24
│ 30 │
36
Кабинеты
заместителя │ 9
│ 12 │
18 │ 18
│ 18 │
18
по
учебной части │ │ │ │ │ │
Кабинет
заместителя │ 9
│ 9 │
12 │ 12
│ 12 │
18
директора
по учебно- │ │ │ │ │ │
воспитательной
работе │ │ │ │ │ │
Кабинет
заведующего │ 9
│ 12 │
12 │ 12
│ 12 │
18
учебной
частью по
│ │ │ │ │ │
общеобразовательным │ │ │ │ │ │
дисциплинам │ │ │ │ │ │
Кабинет
помощника │ 9
│ 9 │
12 │ 12
│ 12 │
18
директора
по
│ │ │ │ │ │
хозяйственной
части │ │ │ │ │ │
Приемная
директора и │ 9
│ 9 │
12 │ 12
│ 12 │
18
заместителя
директора │ │
│ │ │ │
по
учебной работе │ │ │ │ │ │
Учебная
часть │ 9
│ 12 │
12 │ 12
│ 18 │
24
Преподавательская │
24 │ 30
│ 36 │
48 │ 60
│ 72
Кабинет
старшего мастера │ 9 │
9 │ 9
│ 12 │
12 │ 12
Кабинет
мастеров │ 18
│ 18 │
24 │ 30
│ 36 │
42
Методический
кабинет и │24 + 6│30 + 6
│36 + 6│48 + 12 │60 + 12 │60 + 12
помещение
учебных пособий│ │ │ │
│ │
Канцелярия │ 9
│ 9 │
9 │ 12
│ 12 │
18
Бухгалтерия
с кассой │ 12
│ 12 │
12 │ 18
│ 18 │
24
Помещение
технического
│ 9 │
9 │ 9
│ 12 │
12 │ 18
персонала
и кладовые │ │ │ │ │ │
Архив │ 12
│ 18 │
18 │ 24
│ 24 │
36
Ротаторная │ 9
│ 12 │
12 │ 18
│ 18 │
24
Экспедиция │ 9
│ 12 │
12 │ 18
│ 18 │
24
Административно-хозяйственные
помещения лучше размещать на I - II этажах поблизости от вестибюля и общих
коммуникаций.
Кабинет заведующего
учебной частью желательно располагать смежно с учебной частью, а преподавательскую - смежно с методическим кабинетом. Все эти
помещения целесообразно группировать среди учебных помещений - на промежуточных
этажах.
Помещения старшего
мастера и мастеров допускается размещать в блоке учебно-производственных
мастерских. Комната технического персонала, архив, ротаторная, экспедиция могут
быть вынесены на любой этаж. Допускается их размещение
в относительно худших зонах естественного освещения. Помещения
административно-хозяйственного назначения вечерних отделений (филиалов)
приводятся в табл. 13.
Таблица 13
─────────────────────────────────┬────────────────────────────────
Помещения │ Площадь помещений, м2,
│ при количестве учащихся
├──────────┬───────────┬─────────
│ до 600
│600 - 1000 │св. 1000
─────────────────────────────────┼──────────┼───────────┼─────────
Кабинет
заведующего │ 9
│ 12 │
18
Приемная
заведующего │ 9
│ 9 │
12
Методический
кабинет и помещение │ 12 + 3 │
15 + 6 │ 24 + 12
учебных
пособий │ │ │
Архив │ 12
│ 18 │
24
Экспедиция │ 9
│ 12 │
18
Помещения отделений
и филиалов профтехучилища желательно организовывать на нижних этажах училища.
Наилучший способ их размещения - I этаж с обеспечением условий автономного
функционирования при самостоятельном холле или коридоре.
3.47. Состав и
площади помещений общественного назначения указаны в табл. 14.
Таблица 14
──────────────────────┬───────────────────────────────────────────
Помещения │
Площадь помещений, м2, при количестве
│ учащихся
├───────┬─────┬─────┬──────┬───────┬────────
│до 400 │400
-│600 -│800 - │1000 - │св. 1500
│ │
600│ 800│ 1000
│ 1500 │
──────────────────────┼───────┼─────┼─────┼──────┼───────┼────────
Помещения
ученического│ 9 │ 12
│ 18 │ 18
│ 24 │
30
самоуправления │ │ │
│ │ │
Помещения
общественных│
18 │ 18 │ 24
│36 <*>│48 <*> │ 54 <*>
организаций │ │ │
│ │ │
Комната-музей
боевой │ 24
│ 24 │ 36 │
42 │ 54
│ 60
и
трудовой славы │ │ │
│ │ │
Кабинет
профориентации│ 54 │ 54
│ 72 │ 72
│ 90 │
108
(профподготовки)
с │ │ │
│ │ │
выставкой
работ │ │ │
│ │ │
учащихся │ │ │
│ │ │
Кинофотолаборатория │
9 │ 9
│ 12 │ 12
│ 18 │
18
Телецентр (телестудия,│ -
│ - │
- │ -
│ 72 │
90
видеорежиссерская, │ │ │
│ │ │
аппаратная
и аппарат- │ │ │
│ │ │
ная
для кинопроекции, │
│ │ │ │ │
аппаратная
звуко- и
│ │ │
│ │ │
видеозаписи)
<**> │ │ │
│ │ │
--------------------------------
<*>
Допускается проектировать в виде двух раздельных комнат.
<**>
Проектируется с учебной замкнутой телевизионной системой.
Среди названных
помещений особое место занимает комната-музей боевой и трудовой славы, которую
желательно вынести на видное место вблизи от холлов, больших зальных рекреаций
или главных лестниц.
Кабинет
профориентации (профподготовки) включает выставку работ учащихся, выполненных в
процессе обучения. В данном помещении демонстрируются наглядные материалы по
профессиям, которым обучает училище. Необходимо предусмотреть место (помещение)
дежурного преподавателя-методиста для личных бесед с юношами и девушками,
поступающими в училище. Следует оборудовать помещение аудиовизуальной
аппаратной для показа слайдов, кинофрагментов.
Размещение
помещений ученического самоуправления, общественных организаций строго не
регламентируется. Желательно лишь приближать эти помещения к актовому залу и
клубно-кружковым помещениям.
Помещения
общественного питания
3.48. Тип столовой
(на сырье или на полуфабрикатах) определяется заданием на проектирование. Как
правило, столовые, размещаемые в городах, следует проектировать на
полуфабрикатах, в сельской местности - на сырье.
Столовые
профтехучилищ и техникумов должны включать: обеденные залы (для учащихся и
преподавателей), производственные, складские и административные помещения.
Площадь обеденного
зала для учащихся на одно место следует принимать по СНиП 2.08.02-89. Состав и
площади производственных, складских и административных помещений даны в табл.
15.
Таблица 15
────────────────────────┬──────────────────────────────────────────────────
Помещения │
Площади помещений столовых, м2, при расчетном
│ количестве
учащихся
├─────┬─────┬─────┬─────┬────────┬────────┬────────
│ 270 │ 360
│ 540 │ 720 │ 960 │
1440 │ 1920
────────────────────────┼─────┼─────┼─────┼─────┼────────┼────────┼────────
Производственные │
│ │ │
│ │ │
Цехи: │ │
│ │ │ │ │
горячий │ 34 │ 38
│ 42 │ 50 │57 (107)│64 (120)│80 (164)
холодный │ 11 │ 11
│ 10 │ 10 │
10 │ 17 │ 17
доготовочный <*> │ 12
│ 12 │ 12 │ 14
│ 20 │
26 │ 26
мясной <*> │ 9
│ 10 │ 10 │ 13
│ 15 │
15 │ 15
рыбный <*> │ -
│ - │
- │ -
│ - │
6 │ 8
овощной <*> │ 10 │ 12
│ 14 │ 16 │
18 │ 22
│ 24
пирожковый │ -
│ - │
- │ -
│ - │
30 │ 46
Помещение
для резки │ -
│ - │
6 │ 6
│ 8 │
8 │ 8
хлеба │ │
│ │ │ │ │
Моечная столовой посуды │ 23 │ 25
│ 23 │ 30 │30 (40) │37 (47) │54 (69)
Моечная кухонной посуды │ -
│ - │
5 │ 6
│ 6 (18) │ 9 (21) │12 (30)
Моечная
и кладовая тары │ 5 │
5 │ 5
│ 7 │
7 │ 11
│ 12
для
полуфабрикатов <*> │ │ │
│ │ │ │
Помещение
заведующего │ -
│ - │
- │ 5
│ 5 │
6 │ 6
производством │ │
│ │ │ │ │
Охлаждаемые
камеры │ │
│ │ │ │ │
для
хранения: │ │
│ │ │ │ │
мясных и рыбных │
5 │ 5
│ 5 │
7 │ 7
│ 12 │
13
полуфабрикатов
<*> │ │
│ │ │ │ │
овощных полуфабри- │
- │ -
│ - │
- │ -
│ 4 │
5
катов
<*> │ │
│ │ │ │ │
фруктов, зелени │
- │ -
│ - │
- │ 5
│ 6 │
6
и
напитков │ │
│ │ │ │ │
молочных продуктов, │
5 │ 5
│ 5 │
5 │ 5
│ 7 │
7
жиров
и гастрономии │ │
│ │ │ │ │
мяса <**> │ 5
│ 5 │
5 │ 8
│ 8 │
10 │ 12
рыбы <**> │ -
│ - │
- │ -
│ - │
4 │ 5
пищевых отходов │ -
│ - │
- │ 9
│ 9 │
10 │ 10
(в том числе неохлаждае-│ │
│ │ │ │ │
мые
помещения - 4 м2)
│ │ │
│ │ │ │
Кладовые
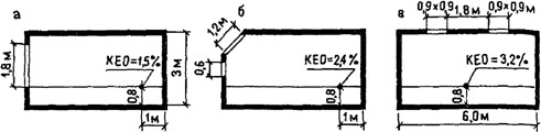
сухих продуктов│ 6 │
7 │ 8
│ 9 │
9 │ 14
│ 14
Кладовая
овощей <**> │ 6
│ 7 │
8 │ 10 │
10 │ 11
│ 11
Кладовая
и моечная тары │ 7 │
7 │ 8
│ 10 │ 12
│ 16 │
17
Кладовая
инвентаря │ -
│ - │
- │ 4
│ 4 │
4 │ 4
Помещение
кладовщика │ -
│ - │
- │ -
│ 4 │
4 │ 4
Загрузочная │ 8
│ 8 │
8 │ 8
│ 10 │
14 │ 14
Административные │
│ │ │
│ │ │
и бытовые │ │
│ │ │
│ │
Кабинет
директора │ -
│ - │
- │ -
│ 7 │
7 │ 7
Контора │ -
│ - │
- │ -
│ 14 │
15 │ 16
Главная
касса │ -
│ - │
- │ -
│ - │
4 │ 4
Помещение
персонала │
5 │ 5
│ 5 │
7 │ 8
│ 10 │
14
Бельевая │ -
│ - │
- │ -
│ - │
4 │ 4
Гардероб
для персонала, │ 12 │
14 │ 16 │ 23
│ 26 │
58 │ 58
душевая,
уборные │ │
│ │ │ │
│
--------------------------------
<*>
Предусматривать только в столовых на полуфабрикатах.
<**>
Предусматривать только в столовых на сырье.
Примечание. При
установке в столовых профессионально-технических училищ механизированной линии
раздачи "Эффект" следует принимать площади производственных
помещений, указанные в скобках.
В профтехучилищах
вместимостью 800 учащихся и более для ускорения и улучшения обслуживания
учащихся рекомендуется установка механизированных линий комплектации,
накопления и отпуска комплексных обедов. Приведенные в таблице площади
учитывают возможность установки линий типа "Эффект".
При
установке механизированной линии типа "Эффект" необходимо обеспечить
удобную связь обеденного зала с горячим цехом и моечной столовой посуды,
горячего цеха с моечными столовой и кухонной посуды.
В обеденном зале
устанавливаются секции стойки-накопителя линии с транспортером комплектации, а
также транспортер для сбора использованной посуды.
В горячем цехе
организуется место для комплектации завтраков и обедов, оснащенное комплектом
передвижного раздаточного оборудования. Если зона комплектации размещена
раздельно, необходимо обеспечить хорошую связь горячего цеха и зоны
комплектации.
В моечной кухонной посуды необходимо
предусмотреть зону для хранения и мойки передвижного раздаточного оборудования.
Планировка и
размеры обеденного зала должны позволять установку линии так, чтобы учащиеся
без лишних затрат времени могли свободно подойти и взять поднос с пищей, а
также подойти к транспортеру для сбора использованной посуды.
Установка линии не
должна ухудшать естественного освещения обеденного зала.
На рис. 50 показан
пример установки линии типа "Эффект" и расстановки столов в обеденном
зале в ПТУ на 960 учащихся.

Рис. 50. Планировка
обеденного зала ПТУ на 960 учащихся
при установке линии
"Эффект"
А - обеденный зал;
Б - горячий цех;
В - моечная столовой; Г - зона комплектации
Схемы планировок и
оборудования кухонь столовых даны на рис. 51.

Рис. 51. Планировка
и оборудование кухонь столовых ПТУ
и техникумов на 960
учащихся
а - горячий цех; б - холодный цех и хлеборезка;
в - мясной цех; г - овощной цех; д - кладовая сухих
продуктов; е -
кладовая овощей; ж - кладовая и моечная тары;
и - охлаждаемая
камера фруктов, зелени и напитков;
к - охлаждаемая камера молочных продуктов, жиров
и гастрономии; л - охлаждаемая камера мяса, рыбы;
м - моечная столовой посуды; н - моечная кухонной посуды;
о - помещение
персонала; п - кладовая инвентаря;
р - помещение заведующего производством; с - помещение
кладовщика; т -
гардероб для персонала, душевая, уборные;
у - контора; ф -
кабинет директора; х - загрузочная;
ц - камера пищевых
отходов; 1, 2 - плита электрическая;
3, 4 - вставка; 5 -
шкаф жарочный электрический;
6 - сковорода
электрическая; 7, 8 - котел пищеварочный
электрический; 9 - устройство электрическое варочное;
10 -
электрокипятильник непрерывного действия;
11 - холодильник
"ЗИЛ"; 12, 13 - шкаф холодильный;
14 - секция-стол с
охлаждаемым шкафом; 15, 16 - привод
универсальный; 17 - мясорубка; 18 - хлеборезка;
19 -
картофелечистка; 20 - песколовка; 21 - машина
посудомоечная
универсальная; 22, 23 - ванна моечная;
24 - 27 - стол
производственный; 28 - стол для сбора
остатков пищи; 29 -
стол для хлеборезки; 30 - стол
для дочистки
картофеля; 31 - стол для чистки лука;
32 - стул для
разрубки мяса; 33 - шкаф с передаточным окном
для хранения
посуды; 34 - шкаф для хранения посуды;
35 - шкаф для
хлеба; 36, 37 - шкаф для одежды;
38, 39 - стеллаж
производственный стационарный; 40 - стеллаж
производственный
передвижной; 41 - 43 - подтоварник;
44, 45 - ларь для
овощей; 46 - раковина; 47 - стол обеденный
четырехлинейный с
табуретами; 48 - транспортер для сбора
посуды; 49 - весы
товарные; линия самообслуживания ЛС-Б;
50 -
прилавок-касса; 51 - прилавок для горячих напитков;
52 - термостат
электрический; 53, 54 - тележка с выжимным
устройством; 55 -
мармит передвижной; 56 - мармит
стационарный
электрический; 57 - шкаф тепловой передвижной;
58 - тележка с
выжимным устройством; 59 - котел
передвижной; 60 -
прилавок-витрина холодильный
Помещения
медицинского обслуживания
3.49. Медицинский
пункт желательно располагать на нижних этажах здания в промежуточной зоне между
спортивными и учебно-производственными помещениями. Желательно, чтобы вблизи
медпункта находилось свободное коммуникационное пространство для пребывания группы
учащихся, проходящей медосмотр.
Состав и площади
помещений медпункта следует принимать по табл. 16.
Таблица 16
────────────────────────────┬─────────────────────────────────────
Помещения │Площадь помещений, м2, при расчетном
│ количестве
учащихся
├─────────────────┬───────────────────
│ до 1000
│ св. 1000
────────────────────────────┼─────────────────┼───────────────────
Кабинет
врача │ 12
│ 14
Процедурная │ 14
│ 18
Кабинет
зубного врача │ 14
│ 14
Итого │ 40
│ 46
Вспомогательные
и подсобные помещения
3.50. Площади
вестибюлей, гардеробов, рекреационных и хозяйственных помещений, а также
количество приборов в уборных и душевых, предусматриваемых в зданиях
профтехучилищ и техникумов, даны в табл. 17.
Таблица 17
────────────────────────────┬───────────┬─────────────────────────
Помещения │ Расчетный │ Площадь, м2,
│показатель
│ или количество приборов
────────────────────────────┼───────────┼─────────────────────────
Вестибюль
и гардеробная │1 учащийся
│ 0,25
Рекреации │То
же │ 0,6
Уборные
для учащихся │ -
│1 унитаз на 30 женщин,
(юношей
и девушек), а также │
│1 унитаз и 1 писсуар на
и
преподавательского состава│
│40 мужчин, 1 умывальник
и
служебного персонала │ │на 2 унитаза, но не менее
(индивидуальные)
│ │одного
Складские
помещения │1 учащийся
│ 0,12
Хозяйственные
кладовые │ │
Кладовые
для хранения │ │
уборочного
инвентаря │ │
Примечание.
Вестибюль, гардероб и уборные в профтехучилищах и техникумах следует
рассчитывать на количество учащихся, находящихся в данном здании с
коэффициентом 1,2 на преподавательский состав и служебный персонал.
Рекреационные
помещения предназначены для кратковременного отдыха учащихся между учебными
занятиями и предусматриваются при учебных и учебно-производственных помещениях.
В практике
проектирования можно выделить следующие формы рекреаций:
линейные (коридорного типа и типа "школьная улица"). Рекреации
коридорного типа (рис. 52) должны быть шириной не менее 2,6 м; их длина не
должна превышать 24 м при освещении естественным светом с одного торца, а при
освещении с двух торцов - 48 м. Коридорные рекреации являются наименее
комфортными для отдыха учащихся. Рекреации типа "школьная улица"
часто становятся центром формирования архитектурно-планировочных
решений и являются основной коммуникационной связью между всеми группами
помещений. При передвижении учащихся по "школьной улице"
просматриваются различные структурные компоненты здания и тем самым не
создается ощущения монотонности, характерное в
рекреациях коридорного типа;

Рис. 52.
Линейные рекреации
центрические
(световые карманы; типа "форум"; типа компактного рекреационного
холла). Наиболее часто из центрических рекреаций применяются рекреации,
решенные в виде световых карманов. Расстояние между ними не должно превышать 24
м, а между световым карманом и окном в торце коридора - 36 м. Ширина светового
кармана должна быть не менее половины его глубины. Рекреации типа
"форум" применяются обычно в индивидуальных
проектах, являясь его центральным композиционным ядром, такие рекреационные
помещения поэтажно связываются между собой парадной лестницей, освещаемой
верхним естественным светом.
Компактный
рекреационный холл (рис. 53) является элементом учебных секций в зданиях,
функционально-планировочная структура которых основана
на группировке учебных помещений по предметному признаку в самостоятельные
учебные блоки-секции (например, секции профессионально-технических,
естественно-математических, общественно-гуманитарных предметов). Преимущества
таких зальных рекреаций - в возможном универсальном использовании пространства
для массовых и активных форм отдыха и во время перерывов между занятиями, для
проведения необходимых физкультурных пауз и т.д. Зальные рекреации часто
выполняют функции выставочных помещений, музея боевой и трудовой славы,
помещения профориентации (могут быть объединены с ними).

Рис. 53.
Компактные зальные рекреации
Требования
к форсированию интерьера
3.51. Формирование
внутреннего пространства и его художественное решение осуществляется в
соответствии с общими композиционными закономерностями с учетом особенностей
функциональных процессов учебного заведения. Основными принципами построения
интерьеров профтехучилищ и техникумов являются следующие.
1. Акцентирование
композиционного центра здания. Композиционным центром здания ПТУ или техникума
могут служить помещение, группа помещений или система перетекающих пространств,
связанных короткими коммуникационными связями со всеми структурными
подразделениями здания. Основная функция композиционного центра -
рекреационно-коммуникационная; дополнительные функции - проведение
торжественных и ежедневных линеек, культурно-массовых мероприятий, размещение
временной экспозиции и т.п. В зависимости от объемно-планировочного решения
здания роль центра могут выполнять: перетекающее пространство вестибюля,
лестниц, фойе, поэтажных холлов-рекреаций, протяженное
рекреационно-коммуникационное пространство типа "школьная улица",
двухсветное пространство вестибюля (или холлов, рекреаций типа
"форум", пространство внутреннего дворика).
Так, например, для
акцентирования композиционного центра здания экспериментального профтехучилища
на 960 учащихся в г. Владимире использованы следующие приемы (рис. 54):
устройство
двухсветного пространства вестибюль-холл-рекреация, развивающегося по
вертикали;
световое
акцентирование композиционного центра устройством верхнего естественного
освещения;
контраст цветовой и
фактурной отделки ограждающих поверхностей по отношению к отделке других
помещений;
смысловая и
визуальная насыщенность пространства композиционного центра; распределение
людских потоков по зданию, отдых в перерывах между занятиями, применение
информационных стендов, эмблемы училища, элементов озеленения, организация
связи с внешним пространством.

Рис. 54.
Приемы акцентирования композиционного центра здания
1 - цветовое
акцентирование лестничной клетки;
2 - максимальное
раскрытие на природу; 3 - элементы
наглядной агитации
и визуальной коммуникации; 4 - система
информации и
визуальной коммуникации; 5 - эмблема ПТУ;
6 -
скамья-цветочница; 7 - скамья;
8 - акцентирование
торцевой стены;
9 - акцентирование
задника сцены или занавеса
2. Структурность
построения пространства. Этот принцип предполагает осуществление зрительно
воспринимаемого расчленения основных функциональных групп здания. Приемы
осуществления этого принципа в рассматриваемом объекте сводятся к следующему:
группировка
помещений с однородными функциями вдоль общей рекреации с
односторонней застройкой; объединение пространств общей вертикальной
коммуникацией; сохранение зрительной связи между элементами здания (остекленные
перегородки в учебно-производственных мастерских);
обозначение границ
зон элементами малых форм, элементами визуальной коммуникации (стенд с
цифровыми обозначениями у входа в зону учебно-производственных мастерских),
цветовым акцентированием, градацией освещенности;
сходство
структурообразующих признаков, например, использование большепролетных
конструкций и зенитных фонарей верхнего света во всех помещениях
учебно-производственных мастерских; использование средств визуальной
коммуникации во всех рекреационно-коммуникационных помещениях и т.д.
3. Развитие
перетекания пространства. Этот принцип в данном примере осуществляется с
помощью сохранения зрительной связи между отдельными функциональными зонами,
что достигается устройством светопрозрачного заполнения дверных блоков,
сохранением зрительной связи между отдельными функциональными зонами, а также
прерывистой преграды (колонны, элементы малых форм и пр.).
4. Взаимодействие
интерьеров отдельных помещений. Создание нюансного сочетания между интерьерами
учебных помещений в цветовом решении, мебели и оборудовании, что обусловлено
идентичностью габаритов, назначением и оснащением кабинетов. Между учебными и
рекреационными помещениями складываются отношения контраста по форме и размерам
помещений, их цветовому решению, отделке ограждающих конструкций, по
насыщенности средств художественной выразительности. На основе контраста
решаются также интерьеры учебных и зальных помещений. При взаимодействии
интерьеров залов и рекреаций может быть несколько подходов. В одном случае -
интерес, неожиданность содержатся в самом интерьере зального помещения, а
контраст с интерьером рекреационно-коммуникационного помещения выявляет этот
замысел. В другом случае используется прием постепенного нарастания воздействия
интерьера при подходе к зальному помещению.
3.52. Формирование
интерьера каждого помещения имеет свои особенности, определяемые протекающим в
данном помещении функциональным процессом. Однако существуют требования, общие
для композиционного построения интерьеров всех помещений здания. К таким требованиям относятся: композиционное выявление основных
форм помещения; акцентирование одной из зон, имеющей превалирующее смысловое
значение в интерьере; достижение визуального разнообразия (в поле зрения
человека должно находиться примерно 9 элементов, имеющих различные
характеристики); повторяемость формообразующих признаков и тождественных
элементов помещений, выделение какого-либо запоминающегося признака интерьера в
качестве основы для разработки его композиционной темы. В различных
помещениях эти требования осуществляются с помощью разнообразных приемов и
средств художественной выразительности.
Проектирование
естественного освещения
3.53. Исходными
данными для проектирования являются:
нормируемое
значение коэффициента естественного освещения (КЕО);
светоклиматические
особенности места застройки;
требуемая
равномерность освещения;
расположение
функциональных зон в помещении;
обязательное или
желательное направление светопоступления на рабочую поверхность;
необходимость
солнцезащиты и светорегулирования;
дополнительные
требования, обусловленные особенностями объемно-планировочного решения,
технологией рабочего процесса, технических средств и оборудования.
3.54. Для освещения
учебных помещений используют системы бокового, верхнего и комбинированного
света. Основные характеристики систем приведены в табл. 18. Возможно применение
наклонных светопроемов - промежуточное положение между вертикальным окном и
зенитным фонарем (рис. 55).
Таблица 18
──────────────┬────────────────────────┬────────────────────┬──────────────
Система
│ Преимущества │ Недостатки │ Рекомендации
естественного │ │ │по применению
освещения
│
│ │
──────────────┼────────────────────────┼────────────────────┼──────────────
Левостороннее │На рабочих столах не │Неравномерность │В учебных
│возникает тени от
руки │освещения по
глубине│помещениях
│при письме. Минимальные
│помещения. Относи- │продольного
│затраты при │тельно низкие значе-│типа глубиной
│строительстве │ния КЕО на удаленных│до
6 м
│ │от
светопроема │
│ │рабочих местах │
Левостороннее │Обладает преимуществами,│Несколько │Только в
с
верхнелевым │описанными выше. Кроме │усложняется │одноэтажных
подсветом │того, повышается │конструкция │зданиях или в
│равномерность освещения │ │верхнем этаже
│и увеличиваются
уровни │ │
│освещенности в
глубине │ │
│помещения │ │
Левостороннее
│Аналогичны описанным
│Создается удобство
│В угловых
с
верхнезадним│выше │для
преподавателя, │классах
подсветом │ │в поле
зрения │или в здании
│ │которого
попадает │пилообразного
│ │светопроем.
Эффект │плана
│ │от подсвета
меньше, │
│ │чем в
предыдущем │
│ │случае │
Левостороннее │Несколько увеличивается │Появляются
мешающие,│Может
с
правым │равномерность │двойные тени на
│применяться
подсветом │распределения │рабочих местах, │для классов
из
рекреации │освещенности и
уровни │ухудшается │глубиной до
через │КЕО │звукоизоляция между
│7,5 м, при
перегородку │ │классом и │ширине здания
│ │рекреационными │не более 12 м.
│ │помещениями │Остекленная
│ │ │часть
│ │ │перегородки
│ │ │начинается с
│ │ │высоты 1,3 м
│ │ │от пола, либо
│ │ │выполняется
│ │ │из стекол,
│ │ │исключающих
│ │ │видимость
Левостороннее │Позволяет получить │Несколько повышается│В
верхних
с
верхним
│равномерное освещение
│строительная
│этажах и
подсветом │высокого уровня │и эксплуатационная │одноэтажных
│ │стойкость │зданиях
Верхний
свет │То
же
│Отсутствие
│В помещениях
│ │зрительной
связи │с повышенными
│ │с
окружающим │требованиями
│ │пространством │к уровню
│ │ │и качеству
│ │ │освещения
Двухстороннее
│Повышается равномерность│Требуется значитель-│В
спортивных и
с
повышенным │освещения и
уровни │ная высота помеще- │актовых
залах
расположением
│освещенности;
│ния, исключается │
светопроемов │отсутствует слепимость │зрительная связь │
│ │с окружающим │
│
│пространством │

Рис. 55.
Схемы освещения с вертикальными,
наклонными и
горизонтальными проемами
а - боковое
освещение; б - наклонное освещение;
в - верхнее
освещение
Проектирование
естественного освещения предполагает выбор формы светопроемов, расчет их
площади или количества, определение взаимного расположения на фасаде здания.
Форма светопроема, как правило, прямоугольная, в пределе квадрата. Круглые и овальные светопроемы используются в основном при
проектировании верхнего освещения. Для расчета КЕО в помещениях с такими
светопроемами их заменяют прямоугольниками той же площади.
Оптимальная площадь
светопроемов устанавливается исходя из двух граничных условий:
значение
коэффициента естественной освещенности должно быть не менее нормируемого
(нижний предел площади); должны быть обеспечены минимальные теплопотери через
светопроем в отопительный период (верхний предал площади).
Характеристика
систем естественного освещения учебных помещений приведена в табл. 18.
3.55. Расположение
светопроемов определяется шириной перемычки над окном и шириной простенков.
Влияние этих параметров на освещенность в глубине помещения показано на рис.
56. Представленные зависимости иллюстрируют работу открытого (незаполненного)
светопроема исходя из условия - один светопроем на 3 м длины помещения. Вид
оконного заполнения учитывается соответствующими коэффициентами.

Рис. 56.
Зависимости КЕО от расположения светопроемов
а - от ширины
перемычки над окном;
б - от ширины простенка между окнами
Световая активность
окна может быть повышена за счет применения:
оконных блоков из
металла и пластмассы;
переплетов с
минимальным членением;
конструкций
заполнения с минимальным межстекольным расстоянием;
остекления с
максимальным светопропусканием.
На рис. 57 показана
зависимость между освещенностью в глубине помещения (КЕО) и значением общего
коэффициента светопропускания окна.

Рис. 57. Зависимость расчетного КЕО от значения
коэффициента
светопропускания окна
3.56.
Светопрозрачные материалы для оконных проемов выбирают исходя из
светотехнических и теплотехнических требований.
Конструирование
фонарей верхнего света или выбор типовых конструкций для учебных помещений
следует проводить с учетом того, чтобы общий коэффициент светопропускания был
не менее 0,7. Общая площадь зенитных фонарей с куполами из органического стекла
не должна превышать 15% площади покрытия здания. Расстояние между зенитными
фонарями выбирается не менее 1,5 м, а от противопожарных стен - не менее 5,0 м.
Для повышения световой активности зенитного фонаря стенки опорного элемента
окрашиваются светлыми красителями с коэффициентом отражения не менее 0,6. При
проектировании верхнего света должно быть обеспечено левостороннее
светораспределение в зоне ученических мест, световые и цветовые акценты на
поверхностях интерьера, выделение зон с повышенной освещенностью. При
использовании в учебных помещениях глухих (неоткрывающихся) фонарей должна быть
обеспечена эффективная работа систем вентиляции и кондиционирования.
Левостороннее светораспределение достигается за счет распределения фонарей в
кровле здания с вариацией типоразмеров и шага следования, расположения рабочих
мест под фонарями, выбором соответствующих коэффициентов отражения при отделке
противоположных стен в помещении.
Раздел 2. Учебные комбинаты (учебные заведения
профессионального
обучения рабочих на производстве)
1. ОБЩИЕ
УКАЗАНИЯ
1.1. Учебные
заведения профессионального обучения рабочих на производстве, которые
формируются по отраслевому принципу, включают: учебные комбинаты,
учебно-курсовые комбинаты, учебные пункты, постоянно действующие школы и курсы
и т.п. (в дальнейшем именуются учебные комбинаты). Они предназначены для
обучения, непрерывного углубления и расширения знаний, роста мастерства рабочих
и техников в условиях резкого повышения эффективности производства и качества
труда, применения новейших технологий и достижений науки.
1.1.1. Учебные
комбинаты создаются в соответствии с утвержденными отраслевыми или
ведомственными нормативами учебно-производственной базы.
1.1.2. Для группы
предприятий, расположенных в одном регионе (области, крае, республике), могут
создаваться на долевых началах межзаводские (для предприятий одной отрасли) или
межотраслевые учебные комбинаты.
Межзаводские и
межотраслевые учебные комбинаты создаются промышленными объединениями на базе
передовых предприятий подотрасли, подчиняются одному из органов управления по
согласованию между заинтересованными сторонами и проводят профессиональное обучение рабочих по договорам с другими предприятиями.
1.1.3. В связи с
тем, что теоретическое обучение рабочих может проводиться также в вечерних
(сменных) профессионально-технических училищах и в вечерних (сменных)
отделениях при дневных профессионально-технических училищах, при проектировании
этих учебных заведений (подразделений) следует руководствоваться требованиями к
проектированию учебных комбинатов.
1.1.4. В учебном
комбинате можно при необходимости организовывать повышения квалификации
инженерно-технических работников и служащих предприятий с соблюдением всех
требований к организации учебного процесса, предусмотренных Типовым положением
о курсах повышения квалификации руководящих работников и специалистов народного
хозяйства.
1.1.5. Расчетной
единицей в зданиях учебных комбинатов является ученическое место. Так как в
учебных комбинатах занятия, как правило, сменные, то "пропускную
способность" - количество ученических мест - следует определять по
максимальной смене.
1.1.6. Для учебных
комбинатов отсутствует нижняя граница вместимости. Так как курсовая сеть может
быть организована в расчете как на предприятие или объединение, так и на
подразделение предприятия или цех, то материально-техническая база курсовой
сети создается на любое количество учащихся, с выделением учебных мест на
производстве.
1.1.7. Расчетное
количество ученических мест в учебных комбинатах принимается по числу
одновременно занимающихся в максимальную смену исходя из полного развития
предприятия в соответствии с ведомственными (отраслевыми) нормативами и
требованиями СНиП 2.09.04-87. Оптимальный предел вместимости - 1500 ученических
мест.
1.1.8. При
размещении учебных заведений на базе агропромышленных хозяйств и предприятий
рекомендуется вместимость учебных зданий (блоков) определять соответственно
общей численности работающих:
до 300 работающих .................. 25 ученических мест
" 500 " ....................... 50 " "
" 1000 " ....................... 75 -
100 " "
" 2000 " ....................... 150 " "
св.
2000 " .......................
200 - 400 " "
1.1.9. Для расчета
количества учебных групп и числа учебных помещений принимается наполняемость
учебной группы 25 человек. Но в связи с тем, что фактическая наполняемость
учебной группы не является стабильной (для разных специальностей) и может
колебаться от 20 до 30 чел., набор оборудования в учебных помещениях должен
определяться из максимально возможной величины, т.е. 30 чел.
1.1.10. Численность
учебной группы для производственного обучения принимается, как правило, 12 - 15
чел., но на специфических видах оборудования и тренажерах уменьшается по
технологическим условиям. Число оборудованных рабочих мест для
производственного обучения желательно принимать кратным числу учащихся в
группе.
2.
ТРЕБОВАНИЯ К УЧАСТКАМ
2.1. Место для учебных комбинатов промышленности целесообразно выбирать
в непосредственной близости от проходной предприятия в радиусе пешеходной
доступности не более 1500 м или транспортно-пешеходной доступности не более 15
мин. Учебное здание желательно размещать на пути основных потоков трудящихся от
рабочего места к жилому району, причем пути движения не должны пересекаться
транспортными магистралями. Располагать здание следует таким образом,
чтобы зона главного входа имела непосредственную связь с предзаводской площадью
или пешеходной аллеей.
Учебное здание, как
правило, размещается за пределами санитарной защитной зоны; если учебное здание
оказывается в зоне вредности, необходимо согласование с санэпидемстанцией.
2.2. Учебные
заведения агропромышленного профиля рекомендуется размещать на базе опытно-экспериментальных
хозяйств (колхозов, совхозов, предприятий переработки сельскохозяйственного
сырья) с образованием учебно-производственных комплексов.
Здания учебных
пунктов агропромышленного профиля можно размещать в следующих местах:
непосредственно в
зоне производства промышленного типа при блокировке с общественно-бытовыми,
административными корпусами (возможна блокировка с производственными
мастерскими пря вечерней организации обучения, а для АПК - также с теплицами,
фермами и т.п.);
в зоне административно-общественного
центра населенного пункта, центральной усадьбы колхозов и совхозов,
агропромышленных предприятий;
в учебной зоне
населенного пункта с возможной кооперацией учебного пункта со зданиями
учебно-производственного комбината, средней общеобразовательной школы,
профессионально-технического училища и т.п.;
в составе
научно-производственных комплексов соответствующей отраслевой направленности.
2.3. Размеры
земельных участков учебных комбинатов определяются по следующим удельным
показателям: для отдельно стоящих зданий учебных заведений вместимостью 300 и
менее ученических мест из расчета 25 м2 на 1
ученическое место; вместимостью 1000 и более ученических мест - 15 м2 на 1
ученическое место. Для промежуточных величин учебных заведений площади
принимаются по интерполяции.
2.4. Площадь
озеленения земельных участков учебных комбинатов - не менее 30%. При размещении
участка в сельских населенных пунктах вблизи лесных и садовых массивов, при
реконструкции учебных заведений, а также в IА, IБ, IГ и IIА
климатических подрайонах площадь озеленения допускается сокращать не более чем
на 30%.
2.5. В составе
учебно-производственных и хозяйственных зон участков учебных заведений для
сельскохозяйственных отраслей, строителей и т.п. желательно предусматривать
резервные площадки базирования мобильных средств обучения.
Площадка-стоянка
мобильных средств обучения может быть включена в состав выставочной и
полигонной зоны, имеющих твердое покрытие. Площадь -
не менее 30 м2 на каждый мобильный объект.
2.6. Площади участков
учебных пунктов определяются в зависимости от отрасли с учетом наличия
специализированных участков, а также от наличия оборудования и сооружений на
них (табл. 19).
Таблица 19
────────────────────────────────┬─────────────────────────────────
Состав сооружений и площадок │
Наличие сооружений при
│ вместимости учебных зданий,
│ ученических мест
├─────┬─────┬─────┬─────┬─────────
│ 50 │ 75
│ 100 │ 150 │200 - 400
────────────────────────────────┼─────┼─────┼─────┼─────┼─────────
Навес
для сельскохозяйственной │
+ │ +
│ + │
+ │ +
техники
и мобильных средств │ │
│ │ │
Пункт
технического обслуживания │ -
│ - │
- │ +
│ +
<*> │ │
│ │ │
Гараж-сарай
сельскохозяйственной│ -
│ - │
- │ +
│ +
техники │ │
│ │ │
Склад
заправочных материалов
│ - │
- │ -
│ + │
+
Рекреационные
спортивные │ -
│ + │
+ │ +
│ +
площадки
<**> │ │
│ │ │
Вольеры,
испытательные участки
│ - │
- │ -
│ + │
+
Полигон
сельскохозяйственной
│ - │
- │ -
│ + │
+
техники │ │
│ │ │
--------------------------------
<*>
Здания (блоки) на 50, 75, 100 уч. мест преимущественно размещаются в
производственной зоне, где пункт технического обслуживания, гараж-сарай,
склады, вольеры и полигоны кооперируются с соответствующими производственными
подразделениями.
<**>
Для здания (блока) на 50 уч. мест, размещаемого в производственной зоне,
площадки не предусматриваются.
2.7. Примеры
решения участков учебных комбинатов даны на рис. 58, а - г;
полигона - на рис. 59.

а)

б)

в)

г)
Рис. 58. Примерные
схемы генпланов учебных комбинатов
а - на 200
ученических мест; б - на 900 ученических мест;
в - на 1300 ученических мест; г - на 1950 ученических мест;
1 - здание учебного
комбината; 2 - учебные мастерские;
3 - общежитие; 4 -
спортплощадки

Рис. 59.
Учебный полигон геологоразведочных работ
3.
ОБЪЕМНО-ПЛАНИРОВОЧНЫЕ РЕШЕНИЯ
Общее
решение зданий
3.1. Состав
помещений курсовой сети определяется педагогическими, гигиеническими и
техническими требованиями. Рекомендуемая структура помещений учебного здания
для курсовой сети и вечерних учебных заведений на производстве приведена на
рис. 60.

Рис. 60. Схема
функциональных взаимосвязей
групп помещений
учебного комплекса
3.2. Помещения
учебных комбинатов подразделяются исходя из функционального назначения на следующие
основные группы:
учебные помещения
(кабинеты, лаборатории и аудитории);
библиотека;
учебно-производственные
помещения;
административно-хозяйственные
помещения;
предприятия
общественного питания;
помещения
медицинского обслуживания;
вспомогательные и подсобные
помещения.
Примечание. Кроме
основных групп помещений в состав учебного заведения могут быть включены и
другие подразделения, определяемые технологическим расчетом.
3.3. Для учебных занятий в соответствии с заданием на проектирование при
числе ученических мест 300 и более должны быть предусмотрены учебные
здания.
Удельные показатели
общей площади зданий учебного комбината на 1 ученическое место следует
принимать исходя из количества ученических мест:
Количество
Общая площадь, м2
ученических мест
св. 300 до
500 .......................
7,8
" 500 " 800 ....................... 7,4
" 800 " 1200 ....................... 6,9
" 1200
............................... 6,4
Примечания. 1. В
удельные показатели не включены учебные цехи и участки, помещения тренажеров,
учебные полигоны и специальные сооружения при них, сооружения инженерного
обеспечения и аналогичные помещения и сооружения, площадь которых определяется
заданием на проектирование.
2. При включении
учебного комбината в учебный комплекс удельные показатели следует определять
дифференцированно с учетом всех типов учебных заведений.
3.4. Этажность
зданий учебных комбинатов определяется градостроительными условиями. При
отсутствии композиционно-архитектурных ограничений на проектирование зданий
учебных комбинатов до 900 уч. мест следует проектировать, как правило, не более
4 этажей, на 1000 и более уч. мест - девятиэтажными.
Примеры решения зданий учебных комбинатов приведены на рис. 61 - 66.

Рис. 61. Учебный пункт на 200 мест (ЦНИИЭП учебных зданий,
арх. Г. Лапир, Л.
Кривущенко)
а - общий вид; б - план первого этажа; в - план типового
этажа; 1 - учебные
помещения; 2 - вестибюль; 3 - буфет;
4 - технические
помещения; 5 - спецкабинет

Рис. 62. Учебный комбинат на 400 мест (ЦНИИЭП учебных
зданий, арх. Г.
Лапир, Л. Кривущенко)
а - план первого
этажа; б - план типового этажа;
1 - учебные
помещения; 2 - препараторская;
3 - вестибюль; 4 -
лекционная аудитория; 5 - столовая

Рис. 63. Учебный комбинат на 600 мест (ЦНИИЭП учебных
зданий, арх. Г.
Лапир, Н. Смирнова, Г. Гарнец)
а - общий вид; б -
план первого этажа; 1 - учебные
помещения; 2 -
вестибюль; 3 - лекционная аудитория;
4 - столовая; 5 -
библиотека: 6 - административные помещения

Рис. 64. Учебный комбинат на 1300 мест (ЦНИИЭП учебных
зданий, арх. Г.
Лапир, Н. Смирнова, А. Гарнец)
а - план первого
этажа; б - план второго этажа;
в - план типового
этажа; 1 - учебные помещения;
2 - вестибюль; 3 -
лекционная аудитория; 4 - техническое
помещение; 5 -
столовая; 6 - библиотека;
7 -
административные помещения; 8 - препараторская

Рис. 65. Учебный комбинат на 1950 мест (ЦНИИЭП учебных
зданий, арх. Г.
Лапир, Н. Смирнова, А. Гарнец)
а - общий вид; б - план первого этажа; в - план типового
этажа; 1 - учебные
помещения; 2 - вестибюль;
3 - конференц-зал;
4 - лекционная аудитория; 5 - столовая;
6 -
административные помещения; 7 - препараторская;
8 - внутренний
дворик

Рис. 66.
Схема взаимосвязи функциональных зон,
зданий и помещений
в хозяйствах агропромышленного профиля
3.5. Все учебные и
учебно-вспомогательные помещения учебных заведений профессионального обучения
рабочих на производстве следует размещать в надземных этажах.
Учебные помещения с
тяжелым и крупногабаритным оборудованием, установками или тренажерами и
учебно-производственные мастерские следует размещать на грунте или на усиленном
по расчету перекрытии.
3.6. В подвальных этажах без естественного освещения допускается
размещать: лаборатории для изучения специальных предметов со спецоборудованием,
телестудии, кинофотолаборатории, радиоузлы, книгохранилища, мастерские (кроме
учебных), предприятия общественного питания, кладовые и складские помещения
(кроме помещений для хранения легковоспламеняющихся и горючих материалов),
вестибюль при устройстве выхода из него наружу через первый этаж, гардеробные,
уборные, умывальни, душевые, курительные, раздевальни, компрессорные, бойлерные,
насосные водопровода и канализации, камеры вентиляционные и
кондиционирования воздуха, узлы управления и другие помещения с инженерным и
технологическим оборудованием.
В цокольных этажах,
кроме помещений которые допускается размещать в подвалах, разрешается размещать
бюро пропусков, помещения копировально-множительных служб.
3.7. Если
промышленные предприятия имеют ограниченное число учебных помещений курсовой
сети, то их следует размещать в административном здании. Такое размещение
предоставляет учащимся возможность пользоваться библиотекой, столовой, залом
собраний и другими помещениями административного здания без снижения качества
обслуживания учащихся, что дает определенную экономию средств на капитальное
строительство.
3.8. В хозяйствах
агропромышленного профиля возможна организация материальной базы учебного
пункта, при которой группы помещений учебно-производственных и теоретического
обучения могут существовать раздельно, а группа административно-бытовых
помещений объединяется с одной из данных групп: производственной, общественного
центра, жилой. При этом возможна кооперация с участками, сооружениями, зданиями
и отдельными помещениями хозяйства различного назначения. Состав групп
помещений учебного пункта рекомендуется следующий:
группа
учебно-производственных помещений: мастерские, тренажерные, модели и макеты,
станки и оборудование;
группа помещений
теоретического обучения: класс-кабинет, киноаудитория, проекционная,
препараторская и комната для хранения ТСО;
группа
административно-бытовых помещений: кабинет для администрации учебного
заведения, преподавательская, бухгалтерия, архив, вестибюль с гардеробом,
санитарно-бытовые и подсобные помещения.
3.9. Помещения
учебных пунктов строителей могут проектироваться в виде самостоятельных блоков,
включаться в состав других общественно-административных зданий или совмещаться
с клубными, административными и другими помещениями.
В качестве учебных
помещений или аудиторий, в мобильных поселках строителей могут также
использоваться красный уголок или торговый зал столовой.
3.10. Помещения
учебных комбинатов менее 300 уч. мест следует, как правило, размещать в
административном здании или объединять со зданиями общественного центра
предприятия, промышленного узла с целью совместного использования подразделений
обслуживания с учетом требований СНиП 2.09.04-87 (рис. 67).

а)

б)

в)
Рис. 67.
Примеры вариантов включения учебного комбината
в композицию общественного
комплекса предприятия
а -
градостроительное формирование комплекса
(Уралгипромез); б -
единое объемное решение
(Сибирский
промстройпроект)
3.11. Допускается
для зданий учебных комбинатов I степени огнестойкости высотой не более 4 этажей
принимать вместимость помещений, выходящих в тупиковый коридор, до 125 чел.,
при этом расстояние от дверей наиболее удаленных помещений этого коридора до
выхода в дальнюю лестничную клетку должно быть не более 100 м.
Учебные
помещения
3.12. В учебных
комбинатах площади учебных помещений определяются из расчета учебной группы в
30 чел.
3.13. Загрузку
учебных помещений учебных комбинатов желательно принимать не менее 75% учебного
времени максимальной смены.
3.14. Площадь
аудиторий следует определять по удельным показателям на одно ученическое место:
Аудитории на количество Площадь на одно
ученических мест: ученическое место, м2:
12 - 15
<*> ............................
2,5
25 ..................................... -
30
.....................................
1,8
Лекционные аудитории
на количество ученических мест <**>:
50 - 75
................................
1,5
76 - 100
............................... 1,3
101 - 150
.............................. 1,2
151 - 300
.............................. 1,1
--------------------------------
<*>
При меньшей вместимости аудиторий удельный показатель площади может быть
увеличен.
<**>
Предусматривать на 25% расчетного контингента, но не более чем на 300 мест.
3.15. Площадь
учебных кабинетов и лабораторий следует определять по удельным показателям на
одно ученическое место:
Помещения Площадь на одно
ученическое место, м2
учебные
кабинеты .......................
1,8
лаборатории общетеоретического
(общеобразовательного) профиля ......... 2,2
лаборатории и кабинеты технического
(профессионального и специального)
профиля
................................
2,4
3.16. Площади
учебных помещений с техническими средствами программированного обучения,
вычислительной техники и для занятий языком следует принимать по удельным
показателям на одно ученическое место. Оснащение и размещение в учебных
помещениях технических средств обучения определяются в соответствии с
требованиями организации учебного процесса:
Помещения Площадь на одно
ученическое место, м2
учебный
кабинет с обучающимися
и
контролирующими машинами .............
2,2
учебные
кабинеты обучающих
и
контролирующих машин
с устройством
обратной связи ........... 2,4
учебные
кабинеты основ информатики
и
вычислительной техники ...............
4,5
3.17. При
лабораториях и учебных кабинетах следует предусматривать препараторские
площадью 18 м2 из расчета обслуживания каждой
лаборатории, двух смежных учебных кабинетов или лабораторий.
В учебных
комбинатах при количестве учебных мест 200 и менее следует предусматривать
помещения для наглядных пособий - по одному помещению площадью 18 м2 на каждые четыре учебных помещения.
3.18. При
отсутствии требований в ведомственных строительных нормах помещения для
теоретических учебных занятий следует предусматривать в зависимости от
численности работающих на предприятии из расчета: до 400 чел. - одно помещение,
св. 400 до 500 чел. - два; св. 500 до 1000 чел. - четыре; далее на каждую
тысячу работающих следует прибавлять по два помещения. Расчетная величина
одного учебного помещения для теоретических занятий - 25 ученических мест.
3.19. Для учебных
зданий в хозяйствах агропромышленных объединений количество учебных помещений
может быть принято по табл. 20 в зависимости от численности работающих.
Таблица 20
─────────────────────────┬───────┬─────────────────────────────────────────
Характеристика │Единица│ Численность работающих в хозяйствах,
│измере-│
чел., до
│ния
├──────────┬─────────────┬────────┬───────
│ │
500 │ 1000
│ 2000 │ 4000
─────────────────────────┼───────┼────┬─────┼──────┬──────┼────────┼───────
Вместимость
<*> │учени- │
50 │ 75 │ 100 │ 150
│ 200 │
400
│ческое
│ │ │ │ │ │
│место │
│ │ │ │ │
Количество
учебных
│ шт. │ 2
│2 - 3│3 - 4 │5 - 9 │10 - 14 │15 - 16
помещений │ │ │
│ │ │ │
─────────────────────────┼───────┼────┴─────┼──────┴──────┼────────┴───────
Размер
помещений │ │ │ │
для
занятий: │ │ │ │
теоретических │ м2 │ 50 - 54 │
54; 72 │ 36; 54; 72; 90
─────────────────────────┼───────┼──────────┼─────────────┼────────────────
лабораторно-практических│ "
│ 54 │
54; 72 │ 72; 90
─────────────────────────┼───────┼──────────┴─────────────┼────────┬───────
учебно-производственных │ "
│ Спецзоны на │
600 │ 1000
(в
мастерских) │ │ производстве │ │
--------------------------------
<*>
Выбор конкретной вместимости учебного здания (для хозяйств с одинаковой
численностью работающих) должен осуществляться с учетом: хозяйственного или
межхозяйственного использования; отраслевой или межотраслевой специализации;
наличия в районе других отраслевых учебных заведений и т.п.
3.20. При оснащении
учебных помещений курсовой сети техническими средствами обучения следует
руководствоваться примерными нормативами, разработанными на основании
материалов отраслевых министерств (табл. 21).
Таблица 21
───────────────────────────────────┬──────────────────────────────
Технические средства │ Норматив
───────────────────────────────────┼──────────────────────────────
Диапроекторы
(кадропроекторы) │1 на каждое
учебное помещение
Кодоскопы
(графопроекторы) │1 на
учебный кабинет
Эпидиаскопы │1 на 400
ученических мест
Киноустановки
(кинопроекторы)
│Широкопленочные (35 мм) -
│1 - 2
на предприятие
│(организацию); узкопленочные
│(8 -
16 мм) - 1 на 400 учебных
│мест
Магнитофоны │1 на 500
ученических мест
Электропроигрыватели
(электрофоны) │То же
Учебные
телевизионные системы
│По мере необходимости
Видеомагнитофоны │То
же
Телевизоры │1 на 500
ученических мест
Тренажеры (установок, отдельных │1 на каждый технологический
узлов
и др.)
│процесс
Технические
средства программи- │1 на 100
ученических мест
рованного
обучения и контроля │
(экзаменатор, контролирующие │
устройства,
репетиторы, обучающие │
машины
и т.д.) │
Автоматизированные классы (классы │1 на 500 ученических мест
программированного
обучения) │
Пневмосхемы (электрифицированные │1 на каждый технологический
схемы
и стенды для демонстрации
│процесс
процессов
и последовательности │
работ
машин и аппаратов) │
3.21. Мобильные
средства обучения - классы, кабинеты, лаборатории - следует применять, как
правило, для краткосрочного обучения в местах с малым количеством работающих.
Наиболее применимы МСО в агропромышленных
объединениях, строительных организациях, добывающих отраслях. Примеры
планировок используемых мобильных средств даны на рис. 68.

Рис. 68.
Оборудование мобильных средств обучения
а -
кабинет-лаборатория; б - класс; в - класс-аудитория;
1 - учебные места;
2 - кинопроектор; 3 - усилитель;
4 - магнитофон; 5 -
экран; 6 - шкафы; 7 - сетки для книг;
8 - лабораторный
стол; 9 - контрольный стенд;
10 - стол преподавателя
Высоту мобильных
учебных помещений следует принимать исходя из условий видимости и габаритов
применяемого технологического оборудования. В контейнерных блокируемых зданиях,
ограниченных высотой в 2,4 м, допускается размещать помещения учебных пунктов с
увеличением площади на 1 учащегося на 30% для обеспечения объема помещения не
менее 4 м3 на человека.
Библиотека
3.22. При расчете
помещений библиотеки учебного комбината количество читателей следует принимать равным 100% преподавателей и 100% расчетного контингента
учащихся.
3.23. Общий фонд
библиотеки принимать по норме 20 томов на одного читателя. Количество читательских
мест - 9% от всех читателей.
3.24. В учебных
комбинатах расчет площади помещений принимать по табл. 22. При числе
ученических мест менее 300 библиотеку учебной литературы (читальный зал с
открытым доступом) следует принимать 0,3 м2 на одно
ученическое место.
Таблица 22
───────────────────┬─────────────────┬─────────────────┬──────────
Помещения │
Расчетный │ Измеритель
│ Площадь,
│ показатель
│ │ м2
───────────────────┼─────────────────┼─────────────────┼──────────
Абонемент
(площадь │На 1 читательское│10%
количества │ 1,8
для
читателей) │место │читательских мест│
Читальные
залы │На
1 читательское│40% количества
│ 2,4
учебного
отделения │место
│читательских мест│
(для
читателей) │ │ │
Книгохранилище: │ │ │
основное хранение │На
1000 единиц │85% общего фонда
│ 2,5
│хранения │ │
открытый доступ │То же │15% общего фонда
│ 5
В тех случаях,
когда в здании управления, в котором размещаются помещения учебных занятий,
предусматривается библиотека, устройство отдельной библиотеки учебной
литературы не требуется.
Учебно-производственные
помещения
3.25.
Учебно-производственная база должна соответствовать нормативам, утвержденным
министерством, и создаваться за счет капитальных вложений, выделяемых на
строительство объектов производственного назначения тех предприятий и
организаций, для которых проводится обучение.
3.26.
Учебно-производственная база учебных комбинатов состоит из учебных мастерских,
участков, цехов, полигонов, отдельных рабочих мест, учебных помещений
(лабораторий, классов, кабинетов), выделенных предприятием для
профессионального обучения. Она оснащена необходимым оборудованием, инвентарем,
техническими средствами обучения и учебно-наглядными пособиями.
3.27. Состав
помещений, необходимый по учебным программам, принимается по нормам и
технологическим требованиям проектирования предприятий соответствующих отраслей
с учетом установленных санитарных норм и правил. Расчет помещений учебных
мастерских следует проводить, как правило, из условий двухсменных занятий.
3.28. Учебная база
для производственного обучения непосредственно на предприятиях имеет следующую
номенклатуру: учебные места, учебные участки и учебные цеха.
Оптимальная
вместимость учебного участка принимается 50 - 87 рабочих мест. Оптимальная
вместимость учебного цеха (с участками) должна быть не менее 100 рабочих мест.
3.29. Площадь
учебных мастерских, в отличие от производственных цехов, должна суммироваться
из двух основных функциональных зон:
зоны
учебно-производственного назначения, которая состоит из зоны с производственным
оборудованием для учебных целей и площади для вспомогательного оборудования;
зоны инструктажа
(места мастера) из расчета 1,4 м2 на одно рабочее
место.
В
учебно-производственной мастерской в дополнение к учебной площади следует
предусмотреть ремонтный участок.
Для уменьшения
площади учебной мастерской следует широко использовать тренажеры, моделирующие
принцип работы крупногабаритного производственного оборудования.
3.30. Место
мастера, предусматриваемое на каждые две подгруппы, оборудуется столом,
классной доской и методическим шкафом с отделениями для хранения
индивидуального инструмента учащихся. Здесь же выделяется участок для инструктируемых.
Для преподавателей
и инструкторов (мастеров) производственного обучения следует предусматривать
помещения из расчета 2,5 м2 на одного человека, а
также методический кабинет площадью 36 м2. В учебном цехе может быть
предусмотрена отдельная комната инструктажа для показа кино- и телефильмов или
прямого телепоказа непосредственно с производства сложных технологических
процессов.
Административно-хозяйственные
помещения
3.31. Состав и
площади административно-служебных помещений учебных комбинатов следует
определять расчетом на основании штатного расписания, утвержденного
соответствующим министерством, и в соответствии с требованиями СНиП 2.09.04-87
из расчета 4 м2 на одного сотрудника.
3.32. При
отсутствии штатного расписания состав административно-служебных помещений
следует принимать исходя из примерных штатов или нормативов численности (табл.
23).
Таблица 23
──────────────────────────┬───────────────────────────────────────
Должность │ Количество административно-служебных
│ помещений при среднегодовом
│ контингенте
обучающихся, чел.
├───────┬───────┬───────┬──────┬────────
│до 150
│от 151 │от 281 │от 401│св. 640
│ │до 280 │до 400 │до
640│
──────────────────────────┼───────┼───────┼───────┼──────┼────────
Директор
(начальник) │
1 │ 1
│ 1 │
1 │ 1
учебного
заведения │ │ │ │ │
Заместитель
директора по │ -
│ 1 │
1 │ 1
│ 1
учебно-производственной │
│ │ │ │
части │ │ │ │ │
Помощник
директора │ -
│ - │
1 │ 1
│ 1
по
хозяйственной части │ │ │ │ │
Главный бухгалтер (старший│ 1
│ 1 │
1 │ 1
│ 1
бухгалтер
на правах │ │ │
│ │
главного
бухгалтера) │ │ │ │ │
Бухгалтер │ -
│ - │
- │ -
│ 1
Счетовод-кассир │ -
│ - │
- │ 1
│ 1
Кладовщик │ -
│ 1 │
- │ -
│ -
Секретарь
учебной части │ -
│ - │
1 │ 1
│ 1
Секретарь-машинистка │
- │ 1
│ 1 │
1 │ 1
Итого │ 2
│ 5 │
6 │ 7
│ 8
Примечания. 1.
Должности главного бухгалтера (старшего бухгалтера на правах главного
бухгалтера), бухгалтера и счетовода-кассира вводятся в штаты учебно-курсовых
комбинатов (учебных пунктов), находящихся на самостоятельном балансе.
2. При
среднегодовом контингенте обучающихся до 150 чел. учебно-курсовой комбинат не создается.
3. Директор
(начальник) учебного заведения, при среднегодовом контингенте обучающихся до
280 чел., исполняет также обязанности по хозяйственной части.
4. При
среднегодовом контингенте обучающихся от 280 до 900 чел. на помощника директора
по хозяйственной части возлагается исполнение обязанностей кладовщика.
5. При
среднегодовом контингенте обучающихся св. 900 чел. и когда на балансе учебного
комбината находятся обособленные здания для учебных аудиторий, лабораторий или
общежитий обучаемых рабочих, штаты этих учебно-курсовых комбинатов утверждаются
в индивидуальном порядке вышестоящими организациями по подчиненности.
3.33. Примерное
штатное расписание учебно-производственного цеха можно принимать по табл. 24.
Таблица 24
────────────────────────────────────┬─────────────────────────────
Должность │ Число штатных единиц
│в
зависимости от рабочих мест
├──────────────┬──────────────
│ до 50 │
св. 50
────────────────────────────────────┼──────────────┼──────────────
Начальник │ 1
│ 1
Ст.
мастер
│ 1 │ 1
Инженер-механик │ -
│ 1
│ │
(смеситель)
Инженер-технолог │ 1
│ 1
Мастер
производственного обучения │1 на
12 - 15 чел. в учебной
│группе
Кладовщик │ 1
│ 1
Уборщица
│В зависимости от норм
│обслуживания
Слесарь-ремонтник │ 1
│ 2
Итого (без мастеров производствен- │
5 │ 6,5
ного обучения и уборщиц) │ │
3.34. При
размещении помещений для специалистов технического обучения рабочих в зданиях
учебных комбинатов следует руководствоваться примерными нормативами численности
(табл. 25).
Таблица 25
──────────────────────┬────────────────────────────────────────────────────
Исполнители │
Количество работников технического обучения
(подразделения) │
при численности работающих на предприятии, чел.
├──────┬──────┬───────┬───────┬───────┬──────┬───────
│до 500│500 -
│1001 - │3001 - │5001 - │8001 -│10001 -
│ │ 1000 │ 3000 │
5000 │ 8000 │
10000│ 15000
──────────────────────┼──────┼──────┼───────┼───────┼───────┼──────┼───────
Работник
отдела │ 1
│ - │
- │ - │
- │ -
│ -
кадров,
совмещающий
│ │ │ │ │ │ │
основную
работу с
│ │ │ │ │ │ │
техническим
обучением │ │ │ │ │ │ │
кадров │ │
│ │ │ │ │
Инженер
технического
│ - │1 - 2 │ -
│ - │
- │ -
│ -
обучения │ │ │ │
│ │ │
Бюро
технического │ -
│ - │ 2 - 3 │ -
│ - │
- │ -
обучения │ │ │ │
│ │ │
Отдел
технического
│ - │
- │ -
│ 4 - 5 │ 5 - 6 │6 - 8 │10 - 15
обучения │ │ │ │
│ │ │
Примечания. 1. В
цехах численностью работающих св. 1000 чел. выделяется освобожденный работник
по техническому обучению кадров.
2. Служба
технического обучения предприятия создается в пределах установленного фонда
заработной платы и предельных ассигнований на содержание аппарата управления.
Предприятия
общественного питания
3.35. В учебных
комбинатах следует предусматривать столовую или буфет.
Количество
посадочных мест определяется из расчета одно место на семь ученических мест.
3.36. При включении
помещений учебного комбината в здание другого назначения, количество мест в предприятии общественного питания следует увеличивать
на соответствующую величину.
3.37. В учебных
комбинатах, размещаемых в отдельных зданиях, следует предусматривать помещение
терапевтического кабинета с приемной площадью не менее 12 м2.
При расчетном
количестве учащихся более 1000 дополнительно предусматривается процедурная
площадью 14 м2.
Вспомогательные
и подсобные помещения
3.38. Площадь
вестибюля и гардероба учебных комбинатов следует принимать из расчета 0,25 м2 на 1 чел. по расчетному количеству ученических мест в
каждом здании с коэффициентом 1,4, учитывающим преподавателей, обслуживающий
персонал и учащихся второй смены.
3.39. В учебных
комбинатах следует предусматривать курительные комнаты из расчета 0,02 м2 на одно ученическое место, но не менее 8 м2.
Раздел 3. Требования к инженерному обеспечению зданий
1.
ВОДОСНАБЖЕНИЕ И КАНАЛИЗАЦИЯ
1.1. Для зданий
учебных заведений следует предусматривать системы холодного и горячего
водоснабжения, а также канализации, обеспечивающие хозяйственно-питьевые и
лабораторные потребности в воде питьевого качества. При устройстве в зданиях
противопожарного водопровода его следует объединять с хозяйственно-питьевым
водопроводом. Указанные системы и внутренние водостоки надлежит проектировать в
соответствии со СНиП 2.04.01-85.
1.2. Расчетные
секундные расходы холодной и горячей воды на лабораторные нужды в лабораториях
следует определять в зависимости от количества установленных водоразборных
приборов технологического назначения, расходов воды этими приборами и
вероятности их действия в час наибольшего водопотребления.
1.3. Расход воды
специальным лабораторным оборудованием следует принимать на основании задания
на технологическую часть проекта.
1.4. Горячее
водоснабжение следует предусматривать для обеспечения лабораторно-технических и
хозяйственно-бытовых нужд, в том числе в уборных и кабинетах врачей.
1.5. Внутреннюю
канализацию для отвода хозяйственно-бытовых и лабораторных сточных вод, как
правило, следует проектировать объединенной.
1.6. Количество и
состав лабораторно-производственных сточных вод следует принимать в
соответствии с данными, приведенными в технологической части проекта.
1.7. Отработанные
реактивы из лабораторий перед спуском их в канализацию должны быть обезврежены
средствами лабораторий, при этом pH сточных вод должно быть от 6,5 до 8,5.
Нейтрализаторы или
усреднители и обслуживаемое ими оборудование следует предусматривать в едином
помещении.
2.
ОТОПЛЕНИЕ, ВЕНТИЛЯЦИЯ И КОНДИЦИОНИРОВАНИЕ
2.1. Расчетные
температуры воздуха в холодный период года и нормы воздухообмена в помещениях
учебных заведений следует принимать по СНиП 2.08.02-89.
Для помещений, не
указанных в СНиП 2.08.02-89, расчетные параметры воздушной среды следует
принимать согласно нормативам, соответствующим функциональному назначению
помещений.
2.2.
Самостоятельные системы вытяжной вентиляции следует предусматривать для
следующих помещений:
аудитории более 30
мест, учебных кабинетов, лабораторий без выделения вредных веществ (неприятных
запахов), залов курсового и дипломного проектирования, читальных залов;
спортивных залов;
актовых залов;
киноаппаратных;
столовых;
медицинских
помещений;
уборных.
2.3. При
проектировании систем вентиляции расчетные температуры наружного воздуха
следует принимать по СНиП 2.04.05-86.
2.4. Объем воздуха,
удаляемого от вытяжных шкафов, необходимо определять в зависимости от требуемой
скорости движения воздуха в рабочем проеме шкафа, принимаемом из расчета 0,2 м2 на 1 м длины.
При работах,
связанных с веществами 1-го и 2-го классов опасности, скорость воздуха в
рабочем проеме шкафа следует принимать не ниже 1,2 м/с.
Коэффициент
одновременности работы вытяжных шкафов лабораторий следует принимать равным 1.
2.5. Удаление
воздуха от вытяжных шкафов допускается предусматривать общей системой из одного
или нескольких помещений при условии обеспечения требований по
взрывопожаробезопасности согласно СНиП 2.04.05-86.
2.6. Подачу
приточного воздуха следует предусматривать непосредственно в помещения.
В
лаборатории и производственные помещения, в которых выделяются вредные вещества
(например, химические лаборатории, лаборатории гальванопокрытий, сварочные,
стеклодувные), воздух следует подавать частично, но не менее 90% общего
расчетного количества приточного воздуха, при этом остальное количество воздуха
следует подавать в коридоры, причем оно не должно превышать 1,5-кратного
воздухообмена в 1 ч для этих помещений с учетом коэффициента одновременности
действия систем местных отсосов,
определяемого данными технологической части проекта.
Подачу
приточного воздуха в проекционную допускается предусматривать от приточной
системы обслуживаемого зала, при условии подключения воздуховода, идущего в
проекционную, к приточной системе зала, ниже уровня пола проекционной.
2.7. В актовых
залах и аудиториях на 150 мест и более зданий учебных заведений, размещаемых в
III и IV климатических районах, следует принимать оптимальные параметры
воздушной среды при наличии технико-экономических обоснований, а в остальных
климатических районах - предусмотренные СНиП 2.04.05-86.
При определении
объема приточного воздуха следует принимать коэффициенты одновременности работы
вытяжных шкафов при количестве вытяжных шкафов в здании химического профиля:
до 50 ................................... К =
0,9
св. 50
................................... К = 0,8
для
учебных зданий другого профиля,
независимо
от количества установленных
вытяжных
шкафов .......................... К = 0,7
3.
ЭЛЕКТРОТЕХНИЧЕСКИЕ УСТРОЙСТВА
3.1. Электротехнические
устройства в зданиях следует проектировать в соответствии со СНиП 2.08.02-89.
Проектирование
учебно-производственных мастерских, автодромов и трактородромов, помещений
микропроцессорной техники следует вести по ведомственным нормативным документам
соответствующих министерств и ведомств.
3.2.
Электроосвещение основных помещений следует предусматривать светильниками с
люминесцентными лампами и бесшумными пускорегулирующими аппаратами в
соответствии со СНиП II-4-79.
Допускается
применение ламп накаливания в соответствии с техническими требованиями.
3.3. В зданиях
учебных заведений должны предусматриваться следующие виды устройств связи и сигнализации:
а) телефонизация
(городская, директорская). Необходимость местной телефонизации определяется
исходя из технологических требований;
б) радиофикация
(городская, местная, оповещение о пожаре);
в)
электрочасификация и автоматическая звонковая оповестительная сигнализация для
регламентации учебного процесса;
г) автоматическая
охранная сигнализация (по специальному заданию, согласованному с органами
пожарной охраны);
д) автоматическая
пожарная сигнализация;
е) радиоусиление
звука в актовых залах и в аудиториях на 150 мест и более, в спортивных залах;
ж) замкнутые
телевизионные системы (по специальному заданию); сеть для возможности приема
передач центрального телевизионного вещания в учебных кабинетах
общеобразовательных дисциплин, лекционных аудиториях, кабинете ТСО и читальном
зале.
3.4. Городскую и
местную телефонизацию следует проектировать в соответствии с ведомственными
нормами технологического проектирования и временными техническими условиями,
утвержденными Министерством связи СССР.
Установка телефонов
телефонной сети населенного пункта должна предусматриваться в кабинетах
директора и его заместителей (с параллельными телефонами в приемной), учебной
части, преподавательской, канцелярии, бухгалтерии, кабинете директора,
столовой, кабинете врача.
В кабинете
директора должна предусматриваться установка коммутатора местной связи.
Количество абонентов директорской телефонной связи определяется исходя из
технологических требований.
3.5. Радиоточки
должны предусматриваться в кабинетах директора и его заместителей, учебной
части, преподавательской, комнатах старшего мастера и мастеров, в канцелярии,
радиоузле, помещении общественных организаций, кабинетах врача и
врача-стоматолога, а также в помещениях столовой: обеденном зале, кабинете
директора, комнате заведующего производством, конторе, комнате персонала.
В зданиях учебных
заведений необходимо предусматривать радиоузел местного вещания с установкой
громкоговорителей в обеденном зале, учебных кабинетах и аудиториях, кабинете
ТСО, лабораториях-кабинетах курсового и дипломного проектирования, комнатах для
самостоятельных коллективов, помещениях общественных организаций, кабинетах
директора и его заместителей, учебной части, преподавательской, методических
кабинетах, вестибюле, рекреационных помещениях.
3.6. Установка электрочасов должна предусматриваться в вестибюле,
рекреационных помещениях, в актовом, обеденном, спортивном залах, во всех
служебных помещениях.
Установку звонков,
управляемых от сигнальных электрочасов, необходимо предусматривать в вестибюле
и в рекреационных помещениях.
3.7. Помещения
учебных заведений должны быть оборудованы автоматической пожарной сигнализацией
в соответствии с требованиями СНиП 2.04.09-84 и Перечнем зданий и помещений
высших и средних специальных учебных заведений СССР.
4.
ГАЗОСНАБЖЕНИЕ И СНАБЖЕНИЕ СЖАТЫМ ВОЗДУХОМ
4.1. В зданиях
учебных заведений допускается предусматривать газоснабжение горелок, которые
нельзя заменять электрическими приборами.
Расчетные
показатели расхода газа для проектирования системы газоснабжения приведены
ниже:
Лабораторные горелки
Расчетные показатели
расхода газа, тыс. Вт
малая
...................................
1,16
большая
.................................
2,32
паяльная
................................
3,71
Расход газа для
других приборов следует принимать в соответствии с требованиями технологической
части проекта.
4.2. Сжатый воздух
следует проектировать низкого давления 0,035 МПа или повышенного давления 0,3
МПа и более в зависимости от технологических требований.
Расчетную
потребность в сжатом воздухе следует принимать по данным технологической части
проекта.
4.3. Для
проектирования системы сжатого воздуха рекомендуется принимать следующие
расчетные показатели:
Потребитель
Расчетный норматив, м3/ч
кран или
колонка лабораторная
на один
кран .........................
1,5
колонка 15
мм на два крана ........... 3
стеклодувные горелки:
малая
............................ 2,5
большая .......................... 5
Приложение
1
ОБОРУДОВАНИЕ
ЗДАНИЙ ЛИФТАМИ
В зданиях
профтехучилищ и техникумов при отметке пола верхнего этажа от отмостки (у
главного входа в здание) 15 м и более следует предусматривать пассажирские
лифты.
Выбор числа,
грузоподъемности и скорости пассажирских лифтов рекомендуется определять по
таблице, исходя из заселенности этажей выше четвертого и интервала движения
лифтов, который не должен превышать 60 с.
Таблица
──────────────────────────────────────┬───────────┬───────────┬───────────┬───────────
N
Лифты грузо-
Число 2 лифта │
3 лифта │ 4 лифта
│ 5 лифтов │ 6 лифтов
п.п.
подъемностью, этажей
───────────┴───────────┴───────────┴───────────┴───────────
кг x скорость,
здания

м/с
──────────────────────────────────────────────────────────────────────────────────────
1
630 x 1 5 233
35 350 23
467 17 584
14 701 12
6 195
44 293 29
391 22 488
18 586 14
7 164
52 246 35
328 26 410 21
493 17
8 144
59 217 40
289 30 361
24 433 20
9 -
- 195 44
260 33 525
26 390 22
2
800 x 1 5 272
38 408 25
544 19 679
15 815 13
6 230
47 346 31
461 23 575
19 691 15
7 194
55 292 37
389 27 486
22 583 18
8 -
- 255 42
340 31 425
25 510 21
9 -
- 229 47
305 35 381
28 458 23
3
1000 x 1 5 350
35 525 23
700 17 874
14 1049 12
6 293
44 439 29
586 22 732
18 879 14
7 244
53 386 35
488 26 610
21 732 17
8 212
60 317 40
423 30 544
24 635 20
9 -
- 281 46
374 34 468
27 562 23
4
1250 x 1 5 408
38 612 25
816 19 1019
15 1223 13
6 346
47 518 31
691 23 864
19 1037 15
7 290
55 435 37
580 28 725
22 870 18
8 -
- 376 43
502 32 627
24 753 21
9 -
- 334 48
445 36 556
27 668 24
Примечание.
Величина
- заселенность этажей выше четвертого
определяется из расчета:
чел., где
- суммарное число учебных мест в помещениях на
этаже; 0,75 - усредненный коэффициент использования помещений; 1,15 -
коэффициент, учитывающий численность преподавательского состава и
обслуживающего персонала.
В случае если в
здании не установлен грузовой лифт с глубиной кабины
не менее 2100 мм, то один из пассажирских лифтов, принимаемых к установке в
здании, заменяется на пассажирский лифт грузоподъемностью 1000 кг с размером
кабины в плане (ширина x глубина) 1100 x 2100 мм.
Грузовые лифты
предусматриваются в соответствии с технологическими требованиями и не могут
быть использованы для транспортирования учащихся, преподавательского состава и
персонала.
Выходы из
подъемников и грузовых лифтов не допускается располагать в пределах лестничных
клеток и на путях эвакуации. Размеры лифтовых холлов (тамбуров) перед грузовыми
лифтами должны быть не меньше внутренних габаритов шахты и позволять доставку и
размещение грузов на средствах горизонтального транспортирования, доставляющих
эти грузы.
Двери шахты
грузовых лифтов не должны выходить наружу из зданий. При необходимости загрузки
и разгрузки лифта с улицы перед его дверями должен быть предусмотрен тамбур с
дверями, предохраняющий конструкции лифта от атмосферных осадков и
обеспечивающий нормативные условия для работы лифта.
Для
транспортирования грузов могут быть использованы малые грузовые лифты.
Перемещение людей в этих лифтах не допускается.
В зданиях учебных
заведений могут быть установлены пассажирские лифты, которые предназначены для
общественных зданий.
Пассажирские лифты
следует устанавливать на основных путях их движения. Наиболее целесообразно их
размещать в центре здания и сосредотачивать, как правило, в одном лифтовом
узле. Поэтому увеличение числа лифтовых узлов, как правило, допустимо в зданиях
протяженностью более 120 м.
Увеличение числа
лифтовых узлов в зданиях меньшей протяженности может быть в следующих случаях:
когда по расчету
вертикального транспорта должно устанавливаться больше одной группы лифтов;
при необходимости
выделения отдельных частей здания с самостоятельным транспортным обслуживанием.
Пассажирские лифты
следует сосредотачивать в группы и располагать рядами. Число лифтов в ряду
должно быть не более четырех. Рекомендуемые сочетания и расположение
пассажирских лифтов приведены на рисунке.

а)

б)

в)

г)

д)
Рис.
Приложения 1. Сочетание и расположение групп лифтов
с типовой системой
группового управления
При числе лифтов: а
- 2; б - 3; в - 4; г - 6; д - 8;
1 - пассажирские
лифты одинаковой грузоподъемности;
2 - грузовые лифты
1100 x 2100 мм грузоподъемностью 1000 кг
Приложение
2
ИСПОЛЬЗОВАНИЕ
ПОМЕЩЕНИЙ ПО ВТОРОМУ НАЗНАЧЕНИЮ
При проектировании
учебных корпусов профтехучилищ и техникумов рекомендуется учитывать
использование помещений (которые допускается размещать в подвалах) по второму
назначению для нужд гражданской обороны под помещения основного назначения
убежищ. Помещения, размещение которых допускается в подвальных и цокольных
этажах с устройством освещения через приямки или иным способом, а также
помещения в первых этажах учебных и общественно-бытовых корпусов рекомендуется
проектировать с учетом их использования по второму назначению под помещения
основного назначения противорадиационных укрытий.
При этом в задании
на проектирование предусматривается раздел "Мероприятия по гражданской
обороне", где назначаются класс убежища или группа укрытия, состав и
площади помещений в соответствии со СНиП II-11-77*. При проектировании зданий и
корпусов профтехучилищ и техникумов общей площадью более 2000 м2 в данном разделе рекомендуется отмечать необходимость
приспособления этих сооружений под больницы хирургического профиля в соответствии
с СН 515-79.
Вместимость
защитных сооружений гражданской обороны учебных общественно-бытовых корпусов
профтехучилищ и техникумов следует принимать на общую численность учащихся,
педагогического и обслуживающего персонала, а при необходимости с учетом данных
местного штаба гражданской обороны и на обеспечение населения, проживающего
вблизи.
В состав помещений
(размещаемых в подвальных и цокольных этажах), которые могут использоваться по
двойному назначению, рекомендуется включать:
комнаты хранения, ремонта
и обслуживания технических средств обучения;
книгохранилище,
библиотеки, архив;
спортивные
помещения - стрелковые тиры, плавательные бассейны;
клубно-кружковые
помещения;
комнаты
общественных организаций;
столовую;
вестибюль с
гардеробом;
санузлы, душевые,
умывальные, раздевальные;
складские
помещения, кладовые хранения лыж и коньков и т.д.
Для укрупненных
расчетов (в зависимости от вместимости и состава инженерного оборудования, при
двухъярусных нарах) рекомендуется принимать: площадь для убежищ - от 0,74 до
1,12 м2 на одного укрываемого; площадь для
противорадиационных укрытий - от 0,55 до 0,65 м2 на одного укрываемого.
При проектировании
мебели и оборудования помещений, размещаемых в подвальных, цокольных и первых
этажах, предназначенных для использования под защитные сооружения,
рекомендуется предусматривать его двойное назначение. С этой целью, например,
стеллажи, поддоны и т.д. для хранения инвентаря и материалов могут
разрабатываться с учетом функциональных размеров мест для сидения, лежания и размещения укрываемых на основе сборно-разборных
конструкций.
Приложение
3
ПРИМЕР
РАСЧЕТА СОСТАВА УЧЕБНЫХ ПОМЕЩЕНИЙ
ПРОФТЕХУЧИЛИЩ И
ТЕХНИКУМОВ
Основу расчета
составляет количество часов в учебном плане по каждому предмету за определенный
период (год, полугодие) и его сопоставление с продолжительностью возможного
использования помещений за данный период. Так, например, согласно учебному
плану на изучение истории отводится за I полугодие 136 ч (см. таблицу): I курс
- 4 ч x 17 недель; II - 2 ч x 17 недель; III - 2 ч x 17 недель.
Для ПТУ на 720
учащихся (24 учебных группы) количество часов по истории составит 1088: I курс
- 68 ч x 8 групп = 544 ч; II - 34 ч x 8 групп = 272 ч; III - 34 ч x 8 групп =
272 ч.
Одно помещение (при
условии односменных занятий) можно использовать ежедневно в течение 6 ч, в
неделю - 6 ч x 6 дн. = 36 ч, в полугодие - 36 ч x 17 недель = 612 ч.
Таким образом, в
ПТУ на 720 учащихся, ведущим подготовку по рассматриваемым профессиям,
необходимо два кабинета истории и при этом их загрузка составит: (1088/612 x
2)100% = 89%.
Рассчитывать состав
и количество помещений можно также и за другие периоды, например за год, в
таком случае расчет будет проще, но усредненнее. Возможен более точный, но
громоздкий расчет за недельный период. Если ПТУ (или техникум) комплектуется из
групп учащихся по нескольким профессиям, необходим усложненный технологический
расчет, учитывающий различие планов учебного процесса. В тех случаях, когда по
предметам выявляется загрузка помещений ниже 75%, их следует объединять в одном
общем помещении, но только тогда, когда эти объединенные предметы родственны,
однородны. Если по какому-либо предмету согласно учебному плану требуется
проведение лабораторных занятий, необходимо предусматривать помимо учебного
кабинета лабораторию. Но при эпизодическом проведении лабораторных занятий (и следовательно, при небольшой загрузке помещений)
целесообразно устройство одного помещения - кабинета-лаборатории. Для
большинства техникумов является характерным низкая загрузка лабораторий
общетехнического и специального циклов. Но поскольку данные лаборатории
являются необходимыми для получения узкопрофессиональных знаний и оснащены специальным
оборудованием, они не могут быть общими (объединенными) для нескольких
дисциплин. Поэтому лаборатории общетехнического и специального циклов вводятся
в состав помещений независимо от загрузки. К таким лабораториям относятся:
автоматизации производства и КИП, промышленного оборудования, механической
обработки металлов, испытания материалов, резания и режущих инструментов,
теплоснабжения и вентиляции, топографии, двигателей внутреннего сгорания,
санитарно-технических работ и т.д.
Наиболее
полноценное использование помещений достигается при укрупнении количества
параллельных групп по каждой профессии. Поэтому с целью наиболее полной
загрузки помещений при проектировании учебных заведений следует учитывать
рекомендуемое оптимальное число профессий (специальностей) в учебных
заведениях: на 540 - 720 учащихся - 3 - 4; 960 - 4 - 5; 1140 и 1920 учащихся -
5 - 7.
Приложение
4
ТРЕБОВАНИЯ К
ПРОЕКТИРОВАНИЮ ДИСПЛЕЙНЫХ КАБИНЕТОВ
При организации
помещений с дисплеями необходим комплексный учет всех элементов, влияющих на
формирование показателей среды: ориентация светопроемов, планировка помещения,
форма и расположение зоны ученических мест, проемы естественного освещения,
характер отделки помещения, солнцезащита, электрическое освещение.
Для учебных
помещений с дисплеями предпочтительной является ориентация светопроемов на
северные румбы горизонта. В этом случае повышается равномерность освещения,
полностью исключается инсоляция, уменьшаются радиационные солнечные поступления
через светопроемы.
Специфика зрительной
работы с дисплеями определяет организацию рабочей зоны (ее желательно размещать
в глубине помещения при максимально возможном удалении от светопроемов). В этом
случае сохраняется высокая световая активность светопроемов (нет необходимости
глухого зашторивания).
Кроме того, в
глубине помещения наблюдается естественный спад освещенности при высокой
равномерности ее уровня. Последнее способствует сохранению контраста
проекционного изображения, уменьшению образования бликов на экране дисплея.
Необходимый уровень и качество освещения в этой зоне достигаются с помощью
дополнительного искусственного освещения.
Формирование
рабочей зоны учащихся проводится с учетом следующих основных требований:
отсутствие прямой и отраженной блескости на экране дисплея, исключение слепления
глаз учащихся, удобство работы преподавателя (возможность свободного прохода) к
рабочему месту учащегося, контроль за работой на
дисплее, наблюдение за учащимися. Основные схемы расположения рабочей зоны
учащихся, принятые на практике, приведены в таблице и на рисунке. Как видно из
рисунка, рабочая зона формируется либо в центральной части помещения, либо
равномерно по помещению, либо вдоль стен. Независимо от способа формирования
общим требованием остается зашторивание светопроемов.
Таблица
───────────────────────────────────────────────────────────────────────────
Расстановка рабочих
мест
──────────────────────────────────────┬────────────────────────────────────
Достоинства │ Недостатки
──────────────────────────────────────┴────────────────────────────────────
а) Циркульная
расстановка
Отсутствие
отраженной блесткости, │Слепимость глаз учащихся, нерацио-
равномерное
освещение в рабочей зоне, │нальное использование площади,
удобство
контроля за работой учащихся │необходимость
глухого зашторивания
──────────────────────────────────────┴────────────────────────────────────
б) Продольная
расстановка
Свободная
расстановка столов,
│Отраженная блесткость на экранах
равномерное
распределение учащихся по │дисплеев,
слепимость глаз учащихся
помещению,
удобство подхода к рабочим │
местам │
──────────────────────────────────────┴────────────────────────────────────
в) Фронтальная
расстановка
Высокий
уровень горизонтальной
│Высокий уровень освещенности на
освещенности,
равномерное
│экране, отраженная блесткость на
распределение
учащихся по помещению │экранах
дисплеев, неравномерность
│освещения
──────────────────────────────────────┴────────────────────────────────────
г) Круговая
расстановка
Удобство
работы преподавателя │Отраженная блесткость на экранах
и
контроля за учащимися
│дисплеев, ослепимость глаз
│учащихся, неравномерность освещения
──────────────────────────────────────┴────────────────────────────────────
д) Периметральная расстановка
Равномерное
распределение учащихся │Отраженная блескость на экранах
по
помещению, удобство работы
│дисплеев, слепимость глаз учащихся,
преподавателя
и контроля за учащимися │высокий уровень освещенности
│на
экране, затруднен подход
│к
светопроемам
──────────────────────────────────────┴────────────────────────────────────
е) Периметральная
расстановка
Равномерное
освещение, баланс яркости │Отраженная блесткость
на экранах
в
поле зрения, удобство работы
│дисплеев, высокий уровень
преподавателя │освещенности
экрана
──────────────────────────────────────┴────────────────────────────────────
ж) Периметральная
расстановка
Равномерное
освещение, удобство работы│Слепимость глаз учащихся, высокий
преподавателя │уровень
освещенности экрана,
│затруднен подход к светопроемам
──────────────────────────────────────┴────────────────────────────────────
з) Центральная
расстановка
Удобство
работы преподавателя │Отраженная блесткость на экранах
и
контроля за учащимися
│дисплеев, слепимость глаз учащихся,
│высокий уровень освещенности экрана

Рис.
Приложения 4. Варианты формирования рабочей зоны
учащихся в
дисплейных кабинетах
а, б, в, г,
д, е, ж, и - даны в таблице
Естественное
освещение учебных помещений с дисплеями обеспечивается, как правило, системой
боковых светопроемов.
Следует отметить,
что для данного вида работ интерес представляют помещения
с верхним светом. Основные преимущества такого приема
освещения применительно к рассматриваемому случаю состоят в следующем: высокие
уровни горизонтальной освещенности, возможность исключения отраженной блескости
(за счет высоты стакана опорного элемента, соответствующей окраски поверхностей
световодной шахты), лучшие условия согласования работы естественного и
электрического освещения (расположение источников света в параллельных
плоскостях, на одном уровне при одинаковом направлении светораспределения).
Отделка учебных
помещений с дисплеями имеет свою специфику. Общим требованием остается
неиспользование в интерьере блестящих поверхностей. Поверхность стены,
находящаяся перед учащимися, должна быть более яркая по сравнению с
поверхностями и иметь коэффициент отражения 0,6 - 0,7. Противоположная стена,
отражающаяся в экране дисплея, должна иметь отражение с коэффициентом 0,4 -
0,5. Поверхность потолка рекомендуется обрабатывать красителем с коэффициентом
отражения порядка 0,7. Следует обратить внимание на то, чтобы элементы
наглядной информации (плакаты, планшеты, подрамники и пр.), размещаемые, как
правило, на стеновых панелях, не были убраны под стекло и чтобы материал имел
коэффициент отражения 0,4 - 0,6. Желательно предусмотреть, чтобы расположение
наглядной информации исключало ее отражение на экране дисплея.
Требования к
солнцезащите зависят прежде всего от того, как
ориентированы дисплеи относительно светопроемов. Здесь характерными являются
три ситуации. В том случае, когда экран дисплеев находится против окон, будь то
в центре помещения или у боковой стены, последние должны полностью
зашториваться. Световая активность окна может быть сохранена, хотя и
значительно уменьшена, если в сторону окна обращены учащиеся. В этом случае не следует использовать глухое зашторивание окон по
той причине, чтобы не создавать в поле зрения глубоких яркостных перепадов
между светящимися экраном и стеной. Напротив, здесь возможно
использовать светопроем, оставляя его в поле зрения светящимся пятном,
трансформированным в нужном соответствии яркости (например, 1:10 или 1:5). Это
и есть одна из основных задач, которая должна решаться регулируемыми
солнцезащитными устройствами. Третья ситуация соответствует положению дисплеев,
когда плоскость экрана перпендикулярна продольной оси помещения. В этом случае
светопроем остается слева от учащегося. Полное раскрытие окон в такой ситуации
недопустимо, а в глухом зашторивании нет необходимости. Световая активность
окна должна быть уменьшена, но при этом полностью должно быть исключено
слепящее действие солнца и неба.
Электрическое
освещение в учебных помещениях с дисплеями проектируется исходя из уровня
горизонтальной освещенности на рабочей поверхности, равной 400 лк. При этом
светораспределение должно быть таковым, чтобы вертикальная освещенность на
экране составляла не более 30% этой величины. Яркость бликующих поверхностей не
должна превышать 200 лк/м2. Ограничение яркости
светильников должно обеспечиваться при углах светорассеяния св. 50° от
вертикали в обоих взаимоперпендикулярных направлениях. Для освещения таких помещений
целесообразными являются светильники с зеркальной защитной решеткой,
распределяющие часть светового потока в верхнюю полусферу. Также возможно
применять светильники, встроенные в подвесные потолки, или применять решетчатые
потолки в виде диффузорной решетки из анодированного алюминия. В последнем
случае светильники устанавливаются между перекрытием и подвесным потолком.
Наименее целесообразной является система отраженного света, так как яркость
потолка при этом более 200 лк/м2.
Рабочие места
рекомендуется располагать между отдельными светильниками или линиями
светильников так, чтобы линия зрения была параллельна световым линиям.
В учебных
помещениях с дисплеями не рекомендуется пользоваться мелом. Кабинеты желательно
оборудовать графопроектором и экраном.
Приложение
5
МЕТОДИКА
МОДЕРНИЗАЦИИ И РЕКОНСТРУКЦИИ ЗДАНИЙ
ПРОФТЕХУЧИЛИЩ И
ТЕХНИКУМОВ
Учебные заведения,
размещаемые в зданиях, приспособленных в процессе эксплуатации, построенных по
проектам школ и ремесленных училищ, требует в каждом конкретном случае
индивидуального выбора вида модернизации или реконструкции.
Для зданий
профтехучилищ и техникумов, построенных по типовым проектам прошлых лет,
необходимы покрытие дефицита помещений (по составу и площадям), достижение
требуемого показателя нормируемой площади, приходящейся на одного учащегося.
Устранение
морального износа зданий, построенных по типовым проектам прошлых лет -
модернизация зданий, возможно без увеличения габаритов зданий путем сокращения
проектной вместимости учебных заведений, а также их внутренней перепланировки и
изменения назначения помещений.
Основным критерием
для определения новой (пониженной) вместимости является сбалансированность
суммарной нормируемой площади по существующему зданию и требуемой по
современным нормам для зданий различной вместимости. Если при снижении
вместимости вновь полученный показатель удельной нормируемой площади больше на
15 - 20% установленного, другой путь модернизации
экономически нецелесообразен.
При модернизации
здания, основанной на его перепланировке, необходимо перераспределение
существующего состава помещений в соответствии с современными требованиями,
размещении недостающих кабинетов общеобразовательного цикла на площадях
избыточных кабинетов спецтехнологии, размещении препараторских за счет
уменьшения габаритов лабораторий, переоборудовании части площадей зальных
помещений (актового зала, столовой) для размещения комнат
воспитательно-досугового назначения. При перепланировке учебных корпусов
желательно по возможности сохранять предусмотренное проектом размещение
помещений, требующих специальных инженерных коммуникаций: кабинеты и
лаборатории профессионально-технического цикла (в техникумах - специального и
общетехнического цикла) - лаборатории физики, химии и биологии.
При уменьшении
вместимости зданий образуется определенное количество избыточных
учебно-производственных мастерских, особенно в комплексах профтехучилищ,
построенных по проектам первого поколения. Этот избыток площадей рекомендуется
использовать для размещения кабинетов спецтехнологии, крупногабаритных
лабораторий, кабинетов профориентации, вспомогательных помещений.
Реконструкция
зданий сопровождается увеличением их габаритов посредством пристроек и
надстроек.
Основой их
формирования служит выявленный дефицит нормируемой площади. В зависимости от
вместимости и периода разработки проектов указанный дефицит составляет от 1600
- 2300 м2 (без учета мастерских).
Исходя из принципов
максимальной унификации и сокращения требуемого количества блоков-пристроек,
предлагается три типа учебных блока-пристройки (с вариантами этажности) и один
клубный блок с библиотекой. Номенклатура блоков-пристроек приведена в таблице.
Таблица
────────────────┬───────────────────────────┬──────────────────────────────
Типы блоков
│Схемы объемно-планировочных│ Состав и площади основных
│ решений │ помещений, м2
────────────────┴───────────────────────────┴──────────────────────────────

1
Вариант А - 8 учебных
помещений: 72 x 4,
4
этажа
54 x 4. Препараторские 18 x 4
────────────────
──────────────────────────────
Вариант Б - 6 учебных
помещений: 72 x 3,
3
этажа
54 x 3. Препараторские 18 x 3
───────────────────────────────────────────────────────────────────────────

2 12
учебных помещений: 72 x 4,
Вариант А - 54 x 5, 36 x
2.
4
этажа
Препараторские 18 x 6
────────────────
──────────────────────────────
Вариант Б - 9 учебных
помещений: 72 x 8,
3
этажа
54 x 4, 36 x 2.
Препараторские 18 x 4
───────────────────────────────────────────────────────────────────────────

3
Вариант А - 12 учебных
помещений: 72 x 8,
4
этажа 54 x 4. Препараторские
18 x 8
────────────────
──────────────────────────────
Вариант Б - 9 учебных
помещений: 72 x 6,
3
этажа
54 x 3. Препараторские 18 x 6
───────────────────────────────────────────────────────────────────────────

4 Библиотека
- 245; помещения
Клубный
блок с общественного
назначения -
библиотекой (на 260; клубные и
кружковые
540 учащихся) помещения - 168
С помощью указанных
блоков-пристроек могут быть реконструированы учебные корпуса всех ПТУ,
построенных по типовым проектам, и общественно-бытовые корпуса профтехучилищ
небольшой вместимости.
Большое
разнообразие планировочных решений общественно-бытовых корпусов ПТУ на 720 и
более учащихся усложняет унификацию блоков-пристроек. Помимо того, для
расширения общественно-бытовых корпусов указанной вместимости характерны
большая площадь застройки и малая этажность. Дополнение таких корпусов
пристройки приведет к еще большей
"распластанности" объекта. В этой связи рекомендуется дополнять
общественно-бытовые корпуса ПТУ на 720 и 960 учащихся не пристройками, а
надстройками. В надстроенной части размещаются недостающие помещения
учебно-вспомогательного и воспитательно-досугового назначения, малые спортивные
залы на половину учебной группы. Объемно-планировочные решения надстроек
принимаются исходя из функциональных и архитектурно-композиционных особенностей
существующих комплексов ПТУ, противопожарных и санитарно-гигиенических
требований.
Рекомендуемые блоки
могут примыкать непосредственно к существующим корпусам, присоединяться
посредством теплого перехода или решаться отдельно стоящими
с самостоятельным входом. В двух последних случаях блок необходимо дополнить
лестницей.
Варианты
реконструкции на примере ПТУ, построенного по типовому проекту 20-03-33,
приведены на рисунке.

Рис. Приложения 5.
Варианты примыкания
блоков-пристроек к
существующим корпусам
(на примере
типового проекта N 20-03-33)
а - примыкание
блока-пристройки
к учебному корпусу
вплотную;
б - присоединение блока-пристройки
к учебному корпусу
посредством крытого перехода
Реконструкция
зданий с применением блоков-пристроек также сопровождается частичной
перепланировкой существующих корпусов. Переходы в блоки-пристройки организуются
по каждому этажу - в случае примыкания блоков вплотную к существующим корпусам
и по первому этажу - в случае присоединения блоков посредством крытого
перехода.
Выбор направления
преобразования существующих зданий профтехучилищ определяется в каждом
конкретном случае исходя из фактической и планируемой численности учащихся
профтехучилища, имеющихся градостроительных условий, наличия резервных
территорий, существующего объемно-планировочного и архитектурно-композиционного решения комплекса.